Nowoczesne mieszkanie 5-pokojowe z ogródkiem
Spółka LOCUS HOME to DEWELOPER który realizuje inwestycje mieszkaniowe na terenie Katowic od wielu lat.…
$983,633
śląskie, Dąbrowa Górnicza,
sprzedaż
$250,000


















SPRZEDAŻ PRYWATNA (bez prowizji)
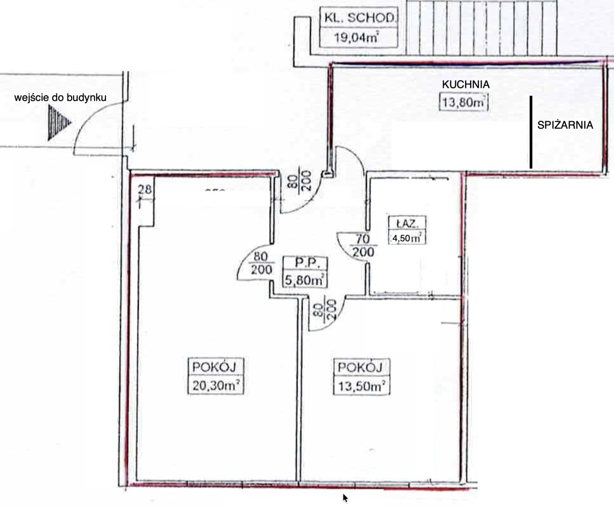
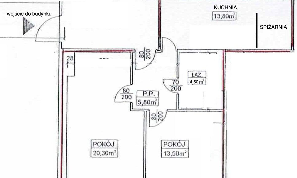
Mieszkanie do remontu na parterze budynku z bardzo łatwym dostępem dla osób niepełnosprawnych. Powierzchnia mieszkalna to 60m2, na które składają się kuchnia ze spiżarnią, przedpokój, łazienka i obecnie trzy pokoje. Pierwotnie mieszkanie było dwupokojowe lecz jeden z pokoi został podzielony na dwa (jeden bez okna służył jako duża garderoba). Ściankę działową można w łatwy sposób usunąć. Oglądanie możliwe każdego dnia.
Spółka LOCUS HOME to DEWELOPER który realizuje inwestycje mieszkaniowe na terenie Katowic od wielu lat.…
$983,633
Sprzedam BEZPOŚREDNIO Dom z dużą działką 35 arów, pięknym ogrodem i stodołą – Jastrzębie-Zdrój, Kasztanowa…
$680,000
What is there more kindly than the feeling between host and guest?
Aeschylus