Siedlisko Nowe Sarnowo gmina Dzierzążnia
Na sprzedaż nieruchomość gruntowa zabudowana kilkoma budynkami o zróżnicowanej funkcji i stanie technicznym. Teren ogrodzony…
$280,000
mazowieckie, Warszawa, Wola
sprzedaż
$820,000






















Na sprzedaż 2-pokojowe mieszkanie o powierzchni 46,45 m², położone przy ul. Okopowej 16 w Warszawie, w dzielnicy Wola – Nowolipki.
Fajna i prężna Wspólnota.
Bezpieczeństwo
Lokal mieszkalny znajduje się na 2. piętrze w budynku z dwiema windami i monitoringiem, do mieszkania prowadzi prywatny, zamykany na klucz korytarz, w prywatnym korytarzu znajduje się łącznie 6 mieszkań. Cisi i sympatyczni sąsiedzi.
Dostępność
Brak barier architektonicznych! Można jeździć wózkiem bez problemów.
Lokalizacja
Świetnie skomunikowana część Woli – ok. 2,5 km pieszo od Pałacu Kultury i Nauki. W bezpośrednim sąsiedztwie pełna infrastruktura miejska: komunikacja (tramwaje, blisko metro Daszyńskiego), sklepy, usługi, szkoły, przedszkola, żłobki, tereny zielone.
Parking
Możliwość parkowania w strefie płatnego parkowania lub na parkingu strzeżonym Gryf (24/7).
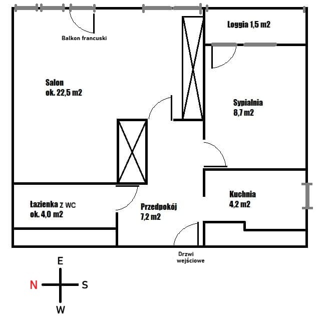
Układ i powierzchnia
Mieszkanie jest funkcjonalne i ustawne:
• pokój dzienny – ok. 23 m²,
• sypialnia – ok. 8 m²,
• kuchnia widna z oknem – ok. 4,2 m2,
• łazienka z WC – ok. 4m2,
• przedpokój – ok. 7,2 m2,
• loggia zamykana oknami przesuwnymi – ok. 1,5m2 – pomieści dwa duże rowery lub np. wózek dziecięcy typu gondola,
• balkon francuski z dużego pokoju,
• piwnica – ok. 1,5m x 1,5m.
Układ widoczny na rzucie.
Media
W mieszkaniu jest ogrzewanie miejskie, gaz, prąd, możliwość założenia telefonu stacjonarnego i podłączenia Internetu przez światłowód. Gaz dostarcza PGNIG, prąd EON.
Czynsz
Przy 1 osobie czynsz miesięczny do wspólnoty (wraz z zaliczkami na wodę i ścieki i śmieciami) wynosi ok. 700 zł.
Standard
Mieszkanie w bardzo dobrym stanie, zadbane w pełni umeblowane i wyposażone.
Wyposażenie obejmuje m.in.: rozkładaną kanapę z pojemnikiem na pościel, 2-osobowe łóżko 140 cm x 200 cm, szafy IKEA PAX i IKEA Billy, szafki w przedpokoju, stolik do kawy i pod RTV, stół IKEA z 4 krzesłami, lodówkę Liebherr, pralkę Beko, zmywarkę Bosch, kuchenkę mikrofalową Daewoo, kuchenkę gazową, meble kuchenne.
Możliwość podłączenia Internetu, np. UPC (doprowadzony światłowód do bloku).
Nie ma konieczności remontu, można zamieszkać bez remontu.
Informacje dodatkowe
• forma własności: pełna własność, lokal stanowiący odrębną nieruchomość, w KW brak ujawnionej piwnicy (ona jest przydzielana przez Wspólnotę do korzystania)
• mieszkanie ma założoną KW
• nieobciążona, czysta hipoteka
• świadectwo energetyczne w przygotowaniu
• w mieszkaniu po zakupie mogą pozostać meble i sprzęty AGD
• nie współpracuję z biurami nieruchomości
UWAGA:
1) obecnie mieszkanie jest wynajmowane, najem okazjonalny obowiązuje do dnia 31 lipca 2026 roku z opcją przedłużenia na kolejny rok
2) mieszkanie możliwe do oglądania tylko po uprzednim umówieniu w weekend w oznaczonych godzinach, ze względu na wynajem każdorazowo musimy umówić oglądanie z najemcami
3) proszę o kontakt wyłącznie przez sms lub telefoniczny w godzinach 18:00-20:00
Na sprzedaż nieruchomość gruntowa zabudowana kilkoma budynkami o zróżnicowanej funkcji i stanie technicznym. Teren ogrodzony…
$280,000
OFERTA BEZPOŚREDNIA!!! Do wynajmu jest nowy po remoncie pokój jednoosobowy o powierzchni 12m2 zamykany na…
$1,100
What is there more kindly than the feeling between host and guest?
Aeschylus