Ładne 1-pokojowe na Czerwonym Prądniku
Zapraszam do zapoznania się z ofertą sprzedaży mieszkania w Krakowie przy ul.Sudolska na Czerwonym Prądniku.…
$399,000
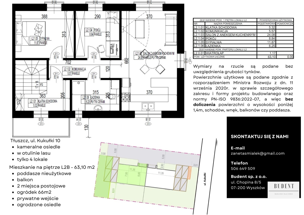
mazowieckie, Tłuszcz,
sprzedaż
$499,000







Na sprzedaż mieszkanie L2B 3-pokojowe na piętrze o powierzchni 63,10 m² z dużym ogródkiem 66 m².
Lokal w nowym budownictwie, w trakcie realizacji – planowane zakończenie prac: czerwiec 2026 r.
Idealna propozycja dla rodzin z dziećmi, par oraz osób szukających mieszkania z własną przestrzenią na zewnątrz.
________________________________________
Powierzchnia i układ (63,10 m²):
• Salon z aneksem kuchennym – 24,08 m² (wyjście do ogrodu)
• Pokój – 11,87 m²
• Pokój – 8,84 m²
• Łazienka – 6,25 m²
• Klatka schodowa – 5,32 m²
• Komunikacja – 5,57 m²
• Wiatrołap – 1,17 m²
• Balkon
• Poddasze nieużytkowe
________________________________________
Ogródek:
• 66 m² prywatnej przestrzeni
• możliwość aranżacji tarasu, strefy wypoczynku lub miejsca zabaw dla dzieci
• idealne rozwiązanie dla osób ceniących komfort i kontakt z naturą
________________________________________
Najważniejsze atuty:
• piętro – zapewniona prywatność
• funkcjonalny, przemyślany układ
• salon z wyjściem do ogrodu
• ogrzewanie podłogowe w całym mieszkaniu
• nowe budownictwo
• inwestycja w trakcie budowy
• termin zakończenia: czerwiec 2026
________________________________________
To mieszkanie sprawdzi się zarówno jako lokal do zamieszkania, jak i bezpieczna inwestycja na przyszłość.
Zapraszam do kontaktu – dostępne są również inne mieszkania. Chętnie odpowiem na wszystkie pytania.
www.budent.pl
Zapraszam do zapoznania się z ofertą sprzedaży mieszkania w Krakowie przy ul.Sudolska na Czerwonym Prądniku.…
$399,000
Wynajmę lokal użytkowy 220 m² – idealny pod fitness! Ostrołęka ul. Sikorskiego Super lokalizacja przy…
$6,600
What is there more kindly than the feeling between host and guest?
Aeschylus