2-pok. mieszkanie 46,45 m² Okopowa 16 / Wola
Na sprzedaż 2-pokojowe mieszkanie o powierzchni 46,45 m², położone przy ul. Okopowej 16 w Warszawie,…
$820,000
zachodniopomorskie, Szczecin,
sprzedaż
$1,495,000










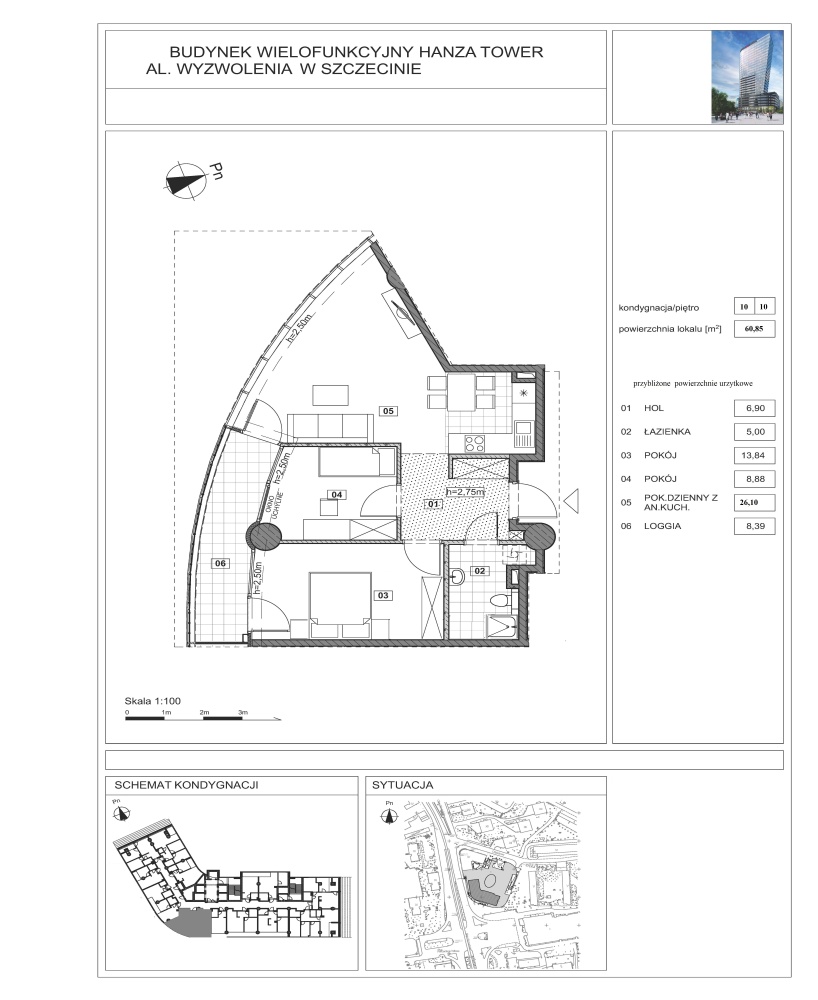
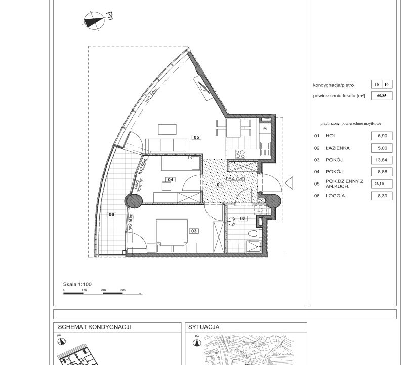
Zamieszkaj w sercu Szczecina – w nowoczesnym, doskonale zaprojektowanym apartamencie w prestiżowej inwestycji Hanza Tower. To wyjątkowa oferta dla osób ceniących wysoki standard, funkcjonalność i styl, z dostępem do luksusowych udogodnień w samym centrum miasta Komfortowy apartament 3-pokojowy w Hanza Tower | 60,85 m² + loggia 8 m² | 10. piętro | Basen | Garaż .• ZESTAWIENIE POWIERZCHNI
Salon z aneksem kuchennym – ca 26,10 m²
Przestronna, doskonale doświetlona strefa dzienna z panoramicznymi przeszkleniami i wyjściem na loggię. Aneks kuchenny w pełni wyposażony w wysokiej klasy sprzęt AGD, z zabudową wykonaną na wymiar.
• Dwie ustawne sypialnie – ca 14 m² oraz ca 9 m²
Oba pokoje z dużymi oknami, zapewniającymi naturalne światło, oraz wyjściem na balkon
• Łazienka – ca 5 m², z prysznicem typu walk-in,pralko-suszarka , umywalka i toaleta .
• Hol – ca 5,5 m² wysoka funkcjonalna zabudowa do przechowywania ubrań i butów .
HANZA TOWER – to nowoczesny standard życia: Najbardziej prestiżowy budynek w Szczecinie oferuje swoim mieszkańcom:
• całodobową recepcję i ochronę,
• 6 nowoczesnych wind,
• strefę wellness z basenem i sauną,
• siłownię i taras widokowy na 27. piętrze,
• dostęp do usług w budynku Beauty , Przychodni lekarskiej i gastronomi
• system klimatyzacji,
• Dodatkowo do zakupu:
• Miejsce postojowe w hali garażowej – 150 000 zł
Na sprzedaż 2-pokojowe mieszkanie o powierzchni 46,45 m², położone przy ul. Okopowej 16 w Warszawie,…
$820,000
Sprzedam mieszkanie 46,29 m przy ulicy Hetmańskiej w Rzeszowie. Mieszkanie składa się z pokoju z…
$500,000
What is there more kindly than the feeling between host and guest?
Aeschylus