Bezpośrednio – 3 pokoje na Powiślu, po remoncie
Sprzedam bezpośrednio mieszkanie o powierzchni 47,8 m przy ul. Topiel 19 na warszawskim Powiślu. Lokal…
$1,099,000
pomorskie, Gdynia, Orłowo
sprzedaż
$1,239,000








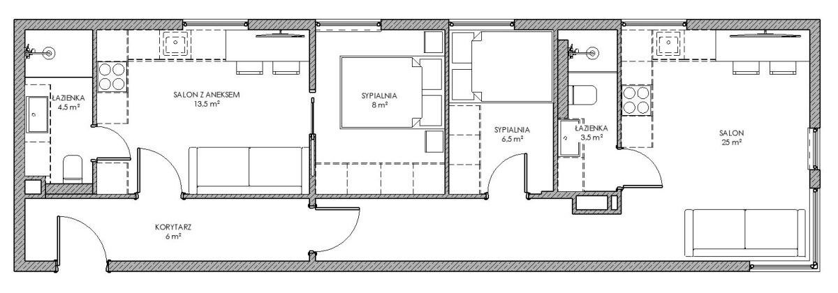
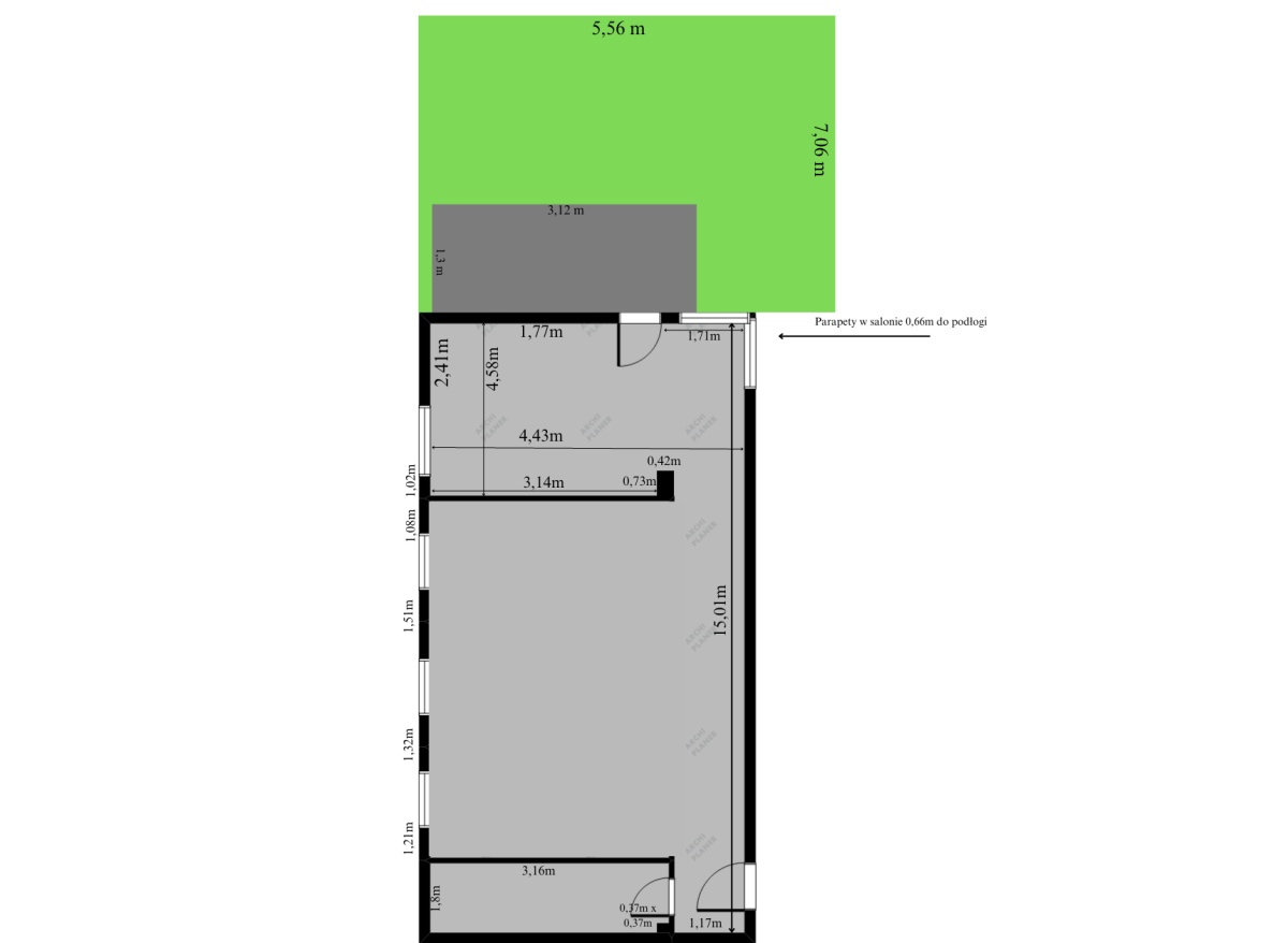
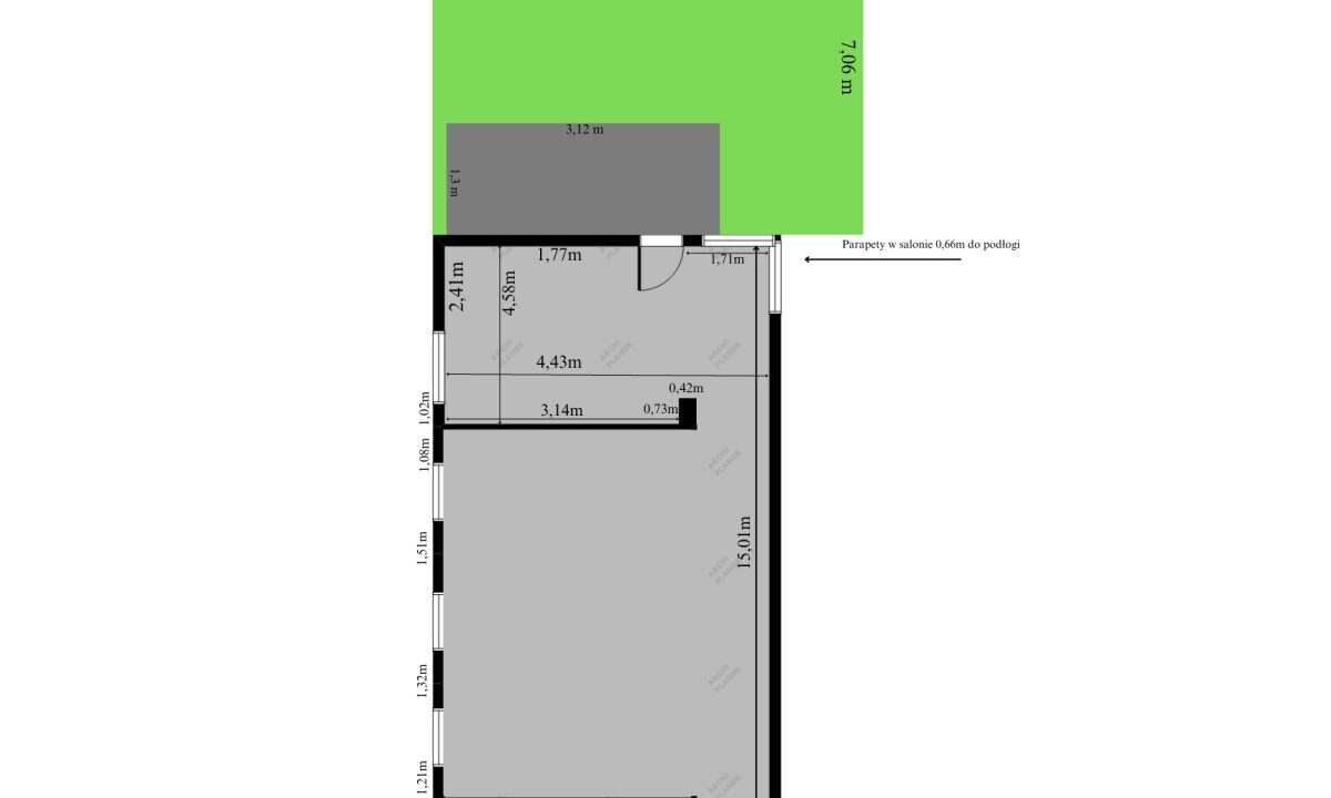
Dzień dobry, na sprzedaż apartament położony w pięknej dzielnicy Gdynia- Orłowo, ul. Wrocławska 43.
W bardzo bliskim sąsiedztwie pełne zaplecze usługowo-handlowe zlokalizowane przy Placu Górnośląskim.
Mieszkanie ma powierzchnię 67,12 m2, stan deweloperski.
To świetna propozycja na lokatę kapitału- mieszkanie jest idealne pod wynajem na pokoje, ale również na komercję typu kancelaria prawna lub kancelaria notarialna itp. W zdjęciach umieszczam również propozycję podziału mieszkania na dwie osobne kawalerki.
Do apartamentu przynależy prywatny, ogrodzony ogródek o powierzchni 40 m2.
Na poziomie -1 znajduje się komórka lokatorska (koszt 10 000 zł) oraz miejsce parkingowe w hali garażowej- koszt 80 000 zł.
Apartament jest zlokalizowany w nowoczesnym budynku o wysokim standardzie wykończenia.
O komfort i bezpieczeństwo dba monitoring i wideofon.
W budynku jest cichobieżna winda.
Lokalizacja budynku- ul. Wrocławska, zapewnia dobry dojazd w każdą stronę Trójmiasta oraz na obwodnicę. Do przystanków komunikacji miejskiej zaledwie 150 metrów.
Ogłoszenie bezpośrednio od Właściciela.
Sprzedam bezpośrednio mieszkanie o powierzchni 47,8 m przy ul. Topiel 19 na warszawskim Powiślu. Lokal…
$1,099,000
Mieszkanie 56,6 m² – 3 pokoje – do remontu – ul. Krasiczyńska 7, Warszawa Przestronne…
$675,000
What is there more kindly than the feeling between host and guest?
Aeschylus