Miejsce postojowe Warszawa Domaniewska
Cena: 80,000 PLN Lokalizacja: Mokotów, ul. Domaniewska Powierzchnia: 12.5 m² Opis: Mam do sprzedania miejsce…
$80,000
pomorskie, Gdańsk, Główne Miasto
sprzedaż
$1,132,903









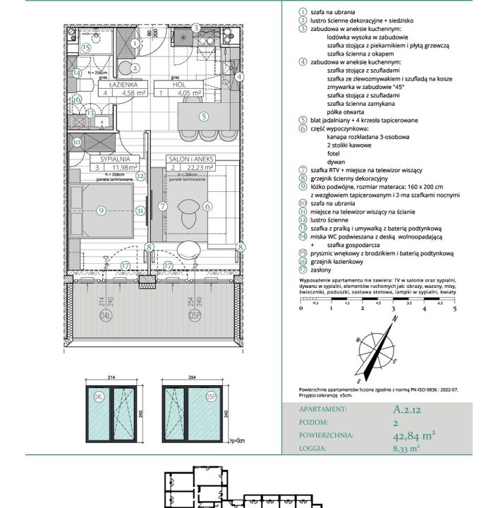
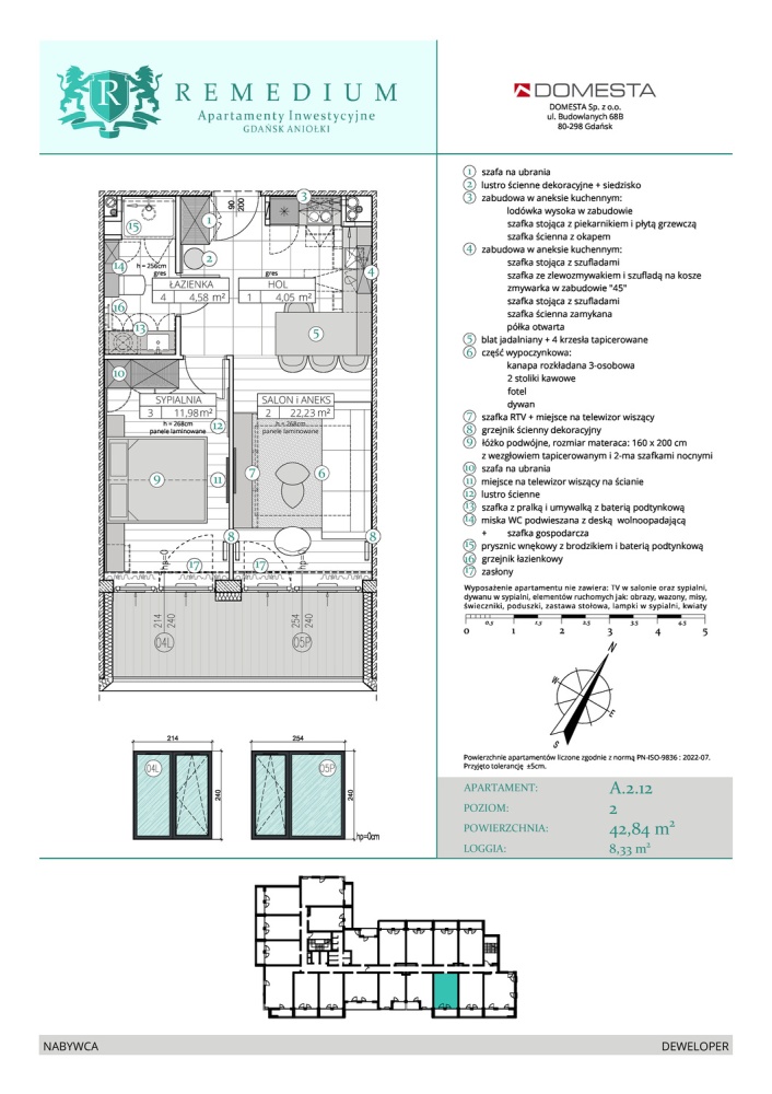
Zaprojektowany z myślą o wygodnym wynajmie krótkoterminowym, ten 2-pokojowy apartament o powierzchni 42,84 m² to gotowy produkt inwestycyjny z wysokim potencjałem zwrotu. Położony na drugim piętrze budynku Remedium, w jednej z najlepiej ocenianych lokalizacji Gdańska – Aniołkach. Odbiór kluczy już w wrześniu 2025.
Układ apartamentu:
– salon z aneksem kuchennym i jadalnią (22,23 m²),
– osobna sypialnia z łóżkiem małżeńskim (11,98 m²),
– łazienka z prysznicem typu walk-in (4,58 m²),
– funkcjonalny hol wejściowy (4,05 m²),
– loggia o powierzchni 8,33 m² – z ekspozycją sprzyjającą doświetleniu i widokiem na zieleń.
Lokal oddawany jest w standardzie „pod klucz”, z pełnym umeblowaniem i gotowy do natychmiastowego uruchomienia najmu. Aneks kuchenny zawiera zabudowę i kompletny zestaw AGD: lodówka, płyta, piekarnik, zmywarka, okap. W salonie: sofa z funkcją spania, fotel, stoliki kawowe, stół z krzesłami, szafka RTV. W sypialni: łóżko 160 × 200 cm, szafki nocne, szafa. W łazience: prysznic, umywalka, zabudowa, pralka, WC podwieszane.
Inwestorzy docenią niskie bariery wejścia – wszystko jest przygotowane, estetyczne, gotowe do promocji i obsługi przez operatora najmu. Standard i układ wpisują się w preferencje gości biznesowych, turystów i uczestników wydarzeń w okolicy.
Do wykończenia zastosowano trwałe, certyfikowane materiały wysokiej klasy – gresy, glazurę, tapety, nowoczesną armaturę i solidną stolarkę drzwiową.
Remedium to inwestycja nagradzana za architekturę i funkcjonalność. Położona w sąsiedztwie Szpitala Uniwersyteckiego GUMed, Politechniki Gdańskiej, Uniwersytetu Medycznego i tętniącej życiem Stoczni Cesarskiej, oferuje stabilny, stały ruch najemców przez cały rok.
Zapraszamy do biura sprzedaży przy inwestycji oraz do obejrzenia gotowego apartamentu pokazowego.
Cena lokalu netto to 1 132 903zł, do której należy dodać 23% VAT.
Jeśli zakup lokalu realizowany jest przez czynnego podatnika VAT i przeznaczony na cele związane z prowadzeniem działalności (np. pod wynajem), można uzyskać zwrot całej wartości podatku.
Link do oferty dewelopera: https://www.domesta.com.pl/remedium
Cena: 80,000 PLN Lokalizacja: Mokotów, ul. Domaniewska Powierzchnia: 12.5 m² Opis: Mam do sprzedania miejsce…
$80,000
Mieszkanie 30 m2 z aneksem kuchennym lazienka podstawowe wyposazenie pralka lodowka. mieszkanie na parterze w…
$1,800
What is there more kindly than the feeling between host and guest?
Aeschylus