BEZPOŚREDNIO Apartament w zielonej części Mokotowa
Oferujemy jasne i przestronne mieszkanie o powierzchni 45,62m² z ogródkiem, położone w spokojnej i zielonej…
$1,090,000
mazowieckie, Warszawa, Wawer
sprzedaż
$1,649,900























Twój wymarzony dom w zabudowie bliźniaczej z ogródkiem na parterze połączonym z salonem oraz tarasem na II piętrze z widokiem na panoramę Warszawy.
Kup bezpośrednio od dewelopera — bez prowizji, bez pośredników!
Nowoczesne osiedle w zielonej dzielnicy Wawer-Las
Zamieszkaj przy ul. Wał Miedzeszyński 574 — w miejscu, gdzie natura spotyka wygodę miejskiego życia, skąd
1 minuta spacerem do 3 przystanków autobusowych
bezpośredni dostęp do ścieżki pieszo-rowerowej nad Wisłą
Tylko 900 m do Trasy Siekierkowskiej
W pobliżu:
przedszkole,
szkoła,
nowa Biedronka,
piekarnia Grzybki,
sklep Sokołów
kameralna galeria handlowa
Dlaczego warto?
Nowoczesna architektura, wysoki standard materiałów oraz staranność wykończenia
Osiedle składa się z 8 domów w zabudowie bliźniaczej oraz 1 wolnostojącego — zaprojektowanych z myślą o estetyce i funkcjonalności.
Przestrzeń i komfort
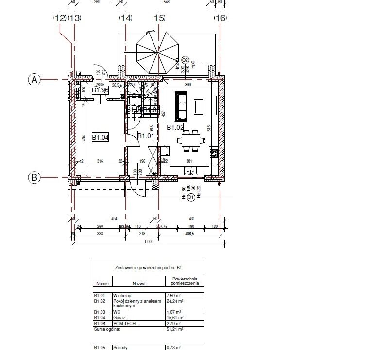
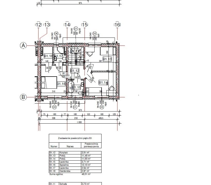
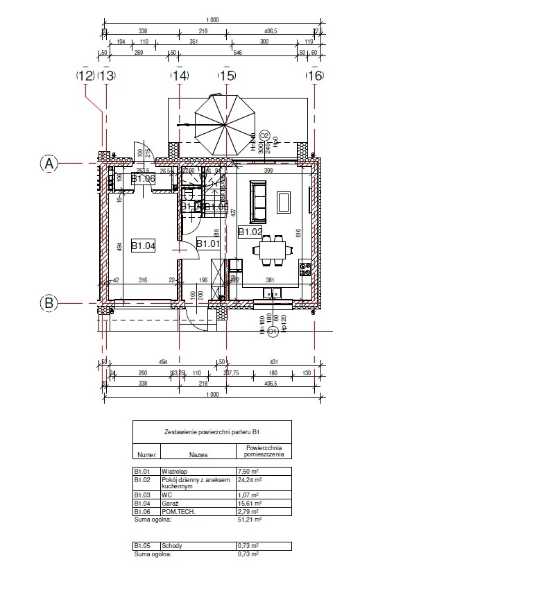
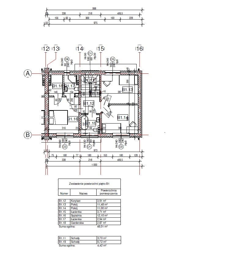
Dom oferuje:
Wysokość wszystkich pomieszczeń w granicach 2,9m,
5 przestronnych pokoi w tym salon z aneksem kuchennym,
3 łazienki + WC,
Garaż w bryle budynku,
Dodatkowe miejsce postojowe z boku domu w cenie
Kotłownię,
Pralnię
Ogródek na parterze,
Taras na II piętrze z widokiem na panoramę miasta
Bezpieczeństwo i technologia:
Rozbudowana sieć komputerowa z zaszytą szafa RACK –
Po 2 punkty komputerowe w każdym pokoju,
Dodatkowe 2 punkty pod Wi Fi
Ogrodzone osiedle z monitoringiem kamerowym
Wideodomofon przy wejściu na osiedle oraz przed każdym domem
Instalacja alarmowa
Rekuperacja — czyste powietrze i niższe rachunki
Ogrzewanie podłogowe w całym domu
Materiały najwyższej jakości
Porotherm Wienerberger
Okna SONAROL Perfectherm z tzw. ciepłym montażem
Izolacje SOPREMA, elewacja Austrotherm (λ = 0,31)
Tynk szwajcarski KABE
Osprzęt elektryczny SCHRACK (Austria)
Kostak brukowa Semmelrock
Dom w stanie deweloperski — gotowy do wykończenia przez nabywcę
Media: gaz, woda, szambo , prąd
Planowane zakończenie budowy: IV kwartał 2025 – wszystko na osiedlu zrobione czekamy na od odbiory
Zadzwoń już dziś i umów się na spotkanie i obejrzenia domu!
Nie przegap okazji — to może być Twój nowy wymarzony dom!
Oferujemy jasne i przestronne mieszkanie o powierzchni 45,62m² z ogródkiem, położone w spokojnej i zielonej…
$1,090,000
Najlepsza oferta na Ursynowie. Mieszkanie ładne, jasne, ciche składa się z salonu, bocznego aneksu kuchennego,…
$780,000
What is there more kindly than the feeling between host and guest?
Aeschylus