Czarowny dworek rodziny Talleyrand w Żaganiu
Oferuję na sprzedaż wyjątkowy dworek rodzinny Talleyrand, położony w malowniczym Żaganiu, woj. lubuskie! Ten czarujący…
$2,520,000
pomorskie, Krynica Morska, Krynica Morska
sprzedaż
$8,000,000



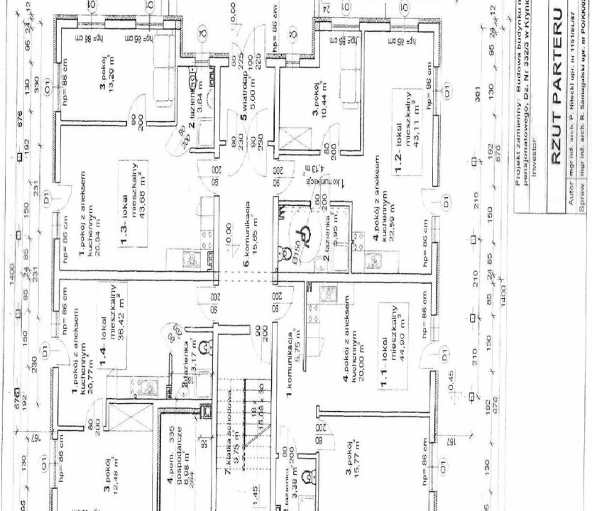
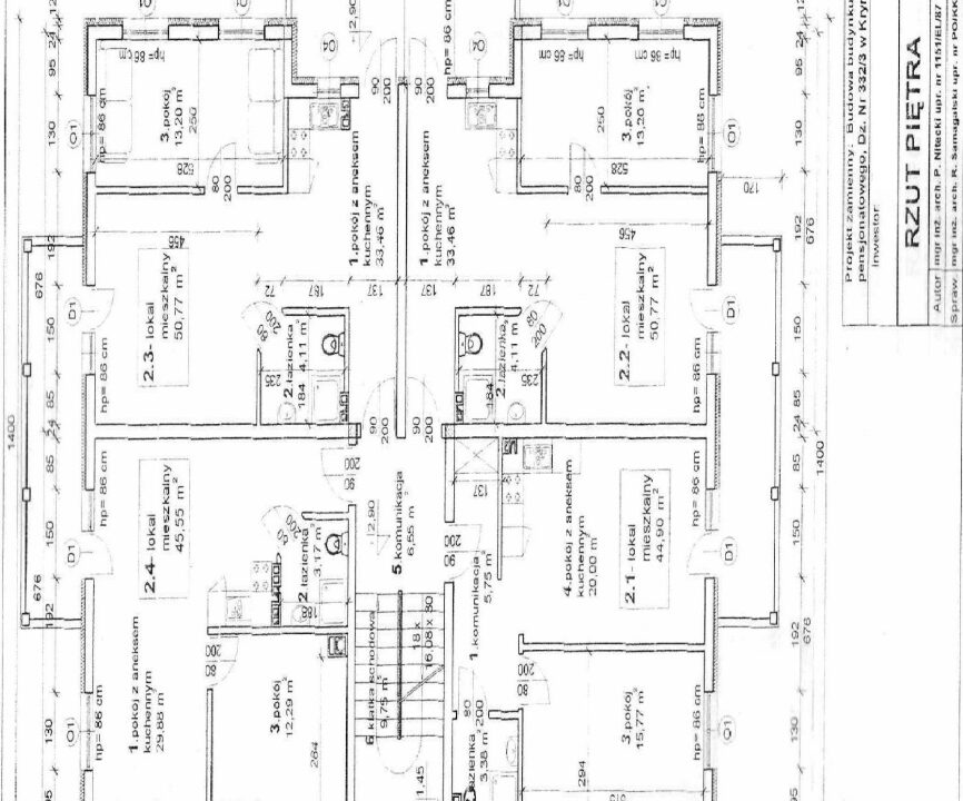
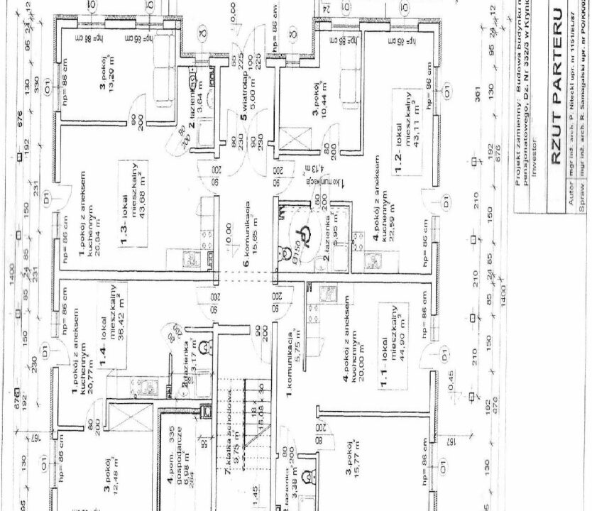
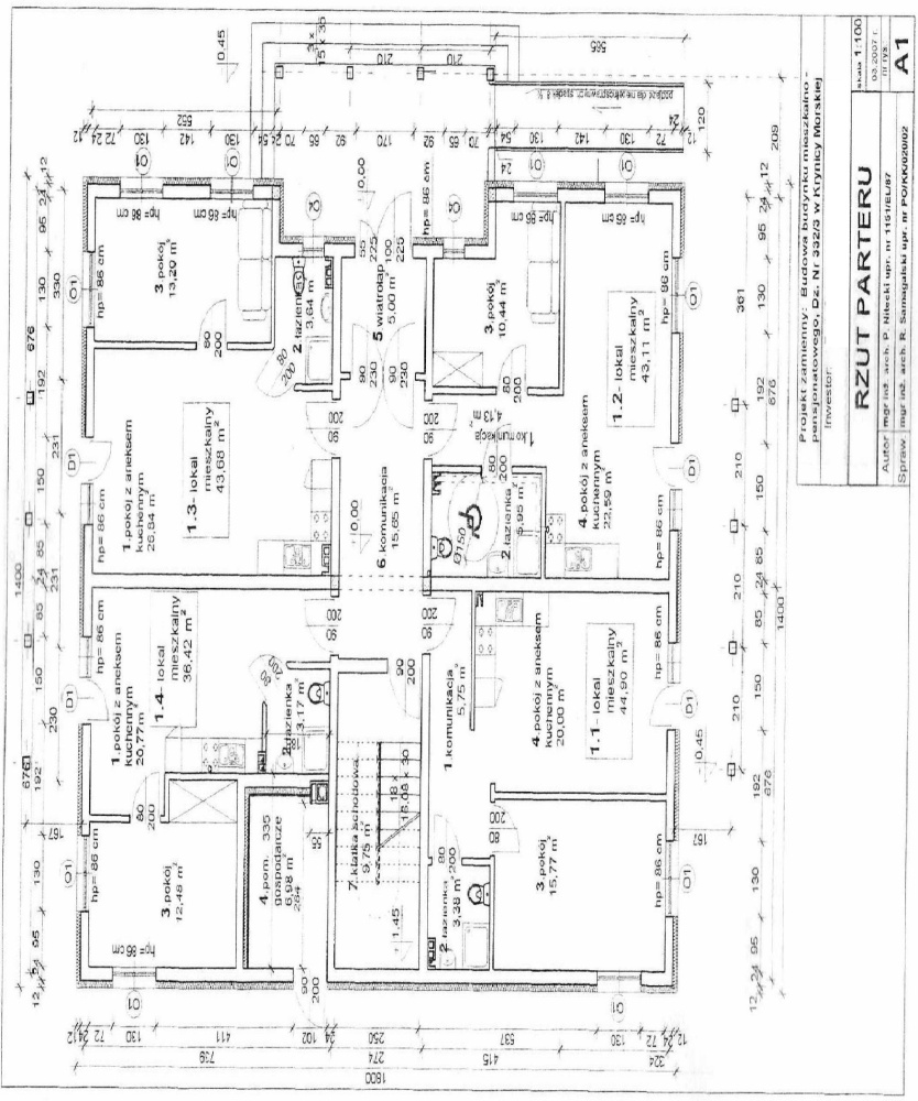
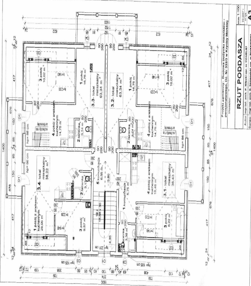
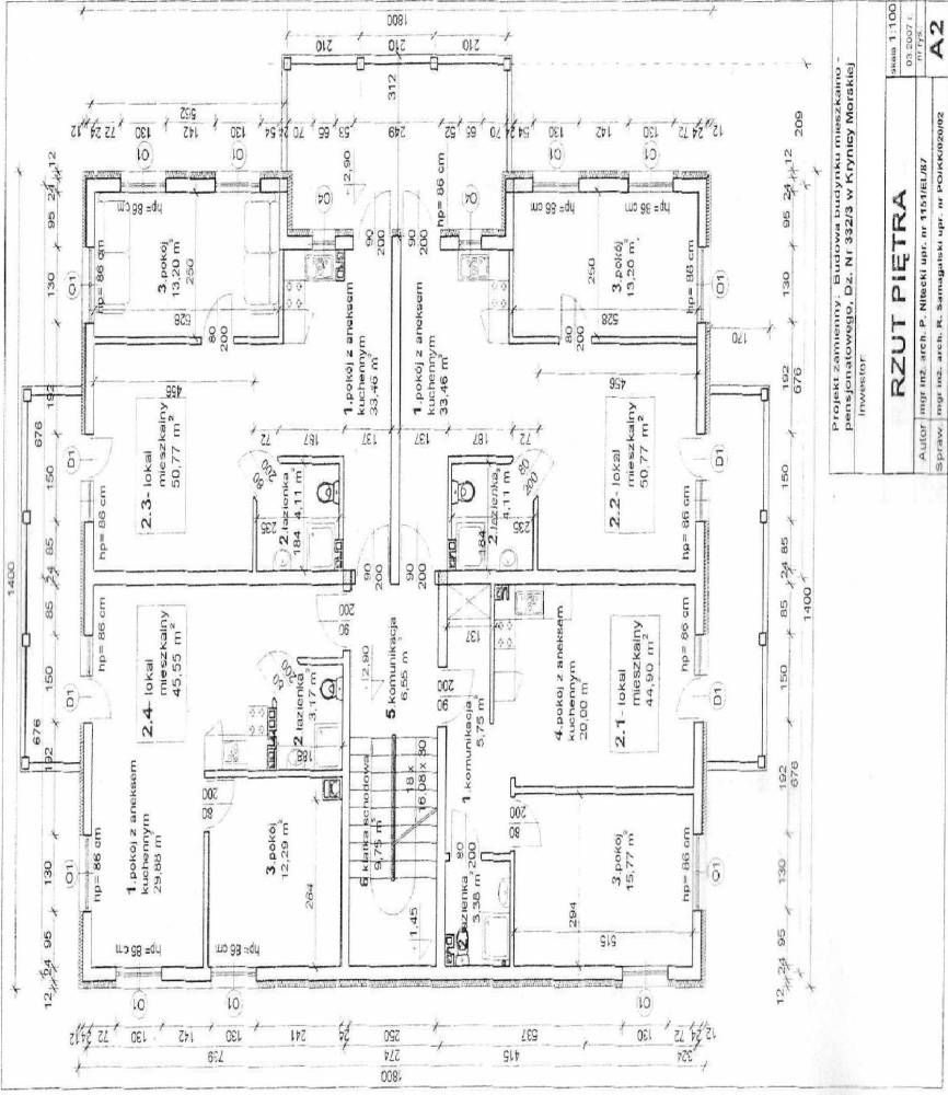
Firma Praxis s.c. posiada na sprzedaż budynek wielolokalowy mieszkalno- pensjonatowy zlokalizowany w Krynicy Morskiej przy plaży nad Zalewem Wiślanym.
Widok na panoramę Zalewu Wiślanego i Wysoczyny Elbląskiej już z I piętra.
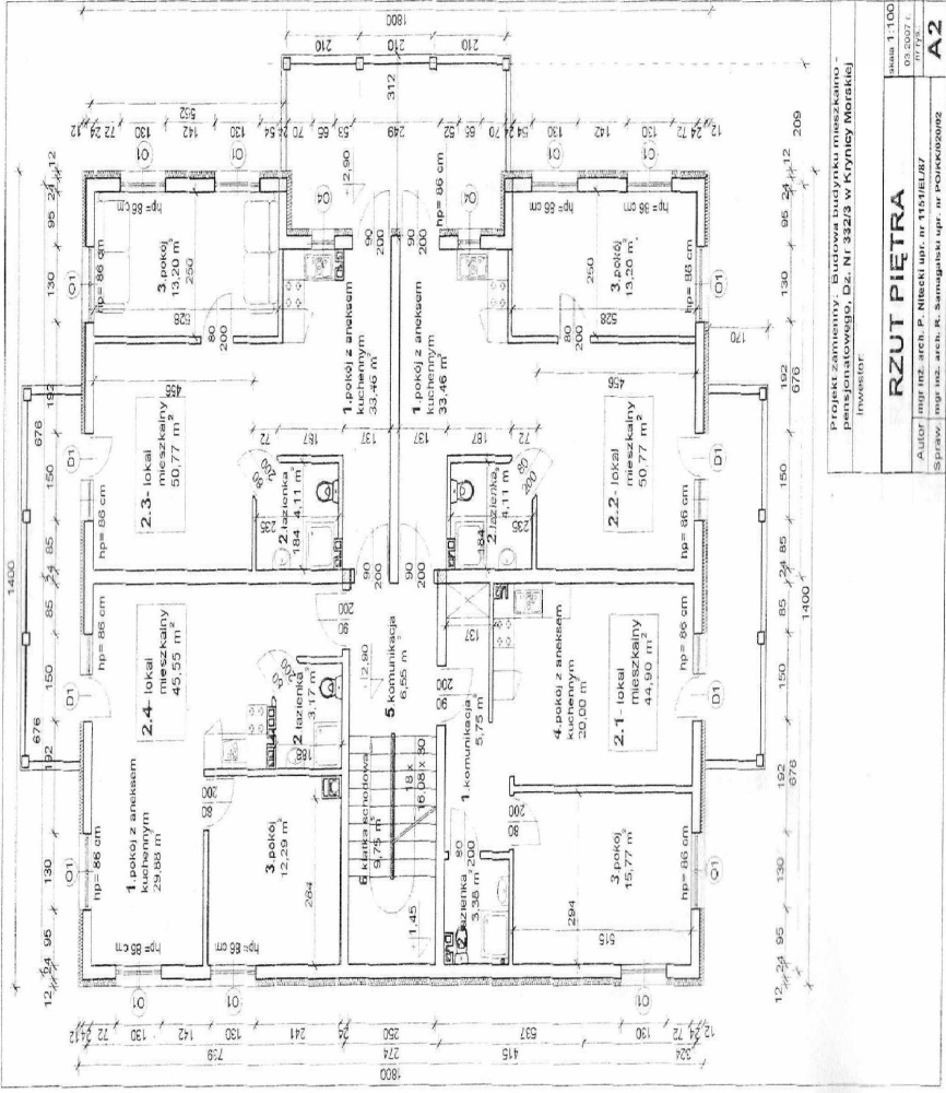
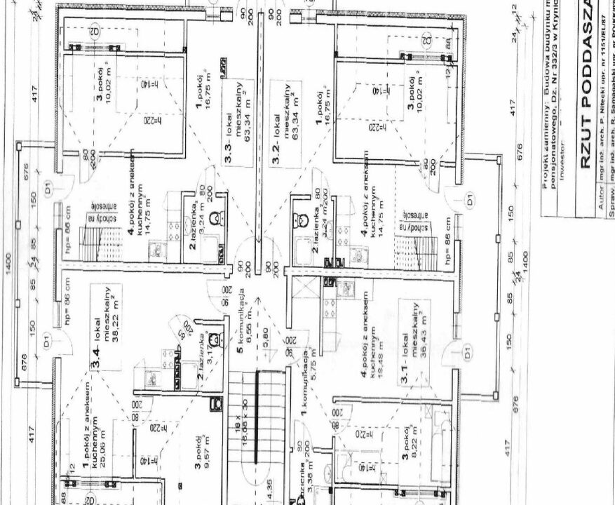
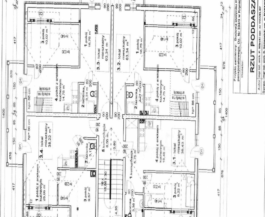
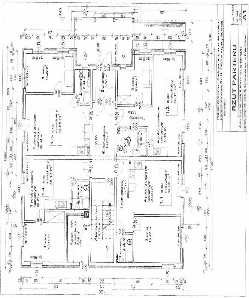
Budynek oddany do użytkowania został 2006r i składa się z 12 niezależnych mieszkań.
Apartamenty mają powierzchnię od 35m do 125m i ciekawą aranżację pomieszczeń.
Część główna – salon z dużym aneksem kuchennym, sypialnia, łazienka, taras lub dwa.
Budynek o łącznej powierzchni użytkowej 620m.
Działka o powierzchni 1185m jest zagospodarowana pięknym ogrodem, Od strony drogi urządzony został oświetlony i monitorowany parking na 14 miejsc.
Budynek składa się 3 kondygnacji oraz wysokiego poddasza użytkowego będącego II poziomem dwóch największych apartamentów.
Działka uzbrojona w prąd, woda miejsca, kanalizacja i internet światłowodowy.
Sprzedaż na podstawie FVat.
Oferta dedykowana w szczególności dla firm.
każdy apartament ma niezależne piony i liczniki,
Okolica cicha i spokojna, przy ulicy znajdują się wyłącznie wille prowadzące sezonowy wynajem.
Odległość do plaży morskiej około 900m, do centrum około 1500m, do plaży nad Zalewem Wiślanym około. 150m, do miejskiego centrum sportu i rekreacji (korty, boisko, plac zabaw i siłownia) powierzchnia około 2 ha gustownie urządzonego kompleksu do aktywnego spędzania czasu około 100m
Oferuję na sprzedaż wyjątkowy dworek rodzinny Talleyrand, położony w malowniczym Żaganiu, woj. lubuskie! Ten czarujący…
$2,520,000
-Wynajmę Twoje mieszkanie bez problemów . -Gwarantuje stały czynsz nawet jeśli lokal stoi pusty. -Przejmę…
$2,500
What is there more kindly than the feeling between host and guest?
Aeschylus