Bezczynszowy segment z ogródkiem obok lasu
Szukasz idealnego miejsca dla swojej rodziny? Oferujemy wykończony segment z ogródkiem, położony w zielonej okolicy.…
$1,200,000
mazowieckie, Pniewy, Kocerany
sprzedaż
$280,000
















Na sprzedaż wyjątkowa i niepowtarzalna działka o powierzchni 1020 m², położona w miejscowości Kocerany (gm. Pniewy, powiat grójecki) z bardzo dobrym dojazdem do Warszawy (40 minut) i własnym wejściem do lasu.
Działka otoczona z każdej strony lasem, z dojazdem drogą gminną – jest objęta miejscowym planem zagospodarowania przestrzennego, który zezwala na budowę domu jednorodzinnego.
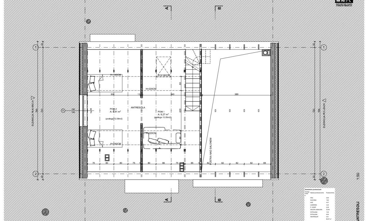
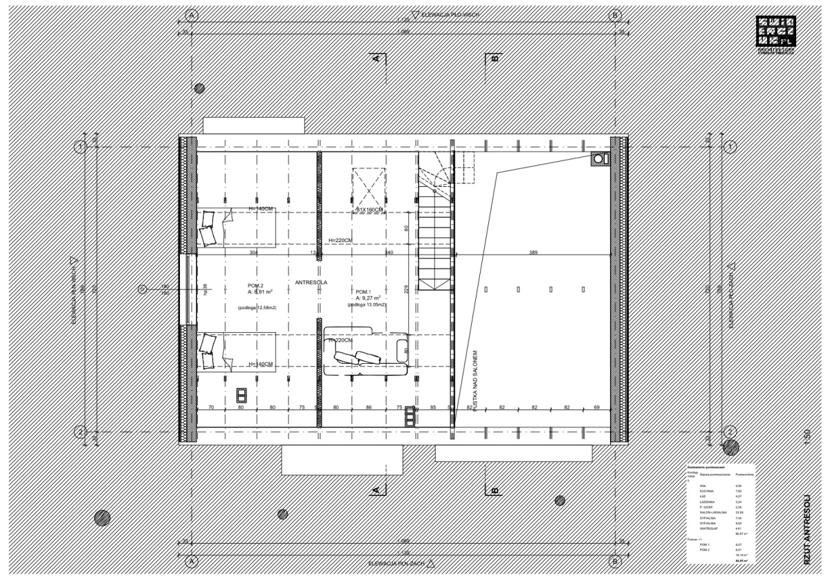
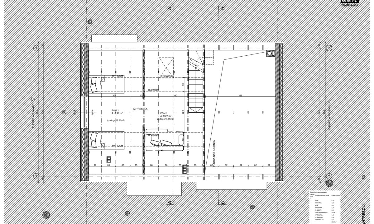
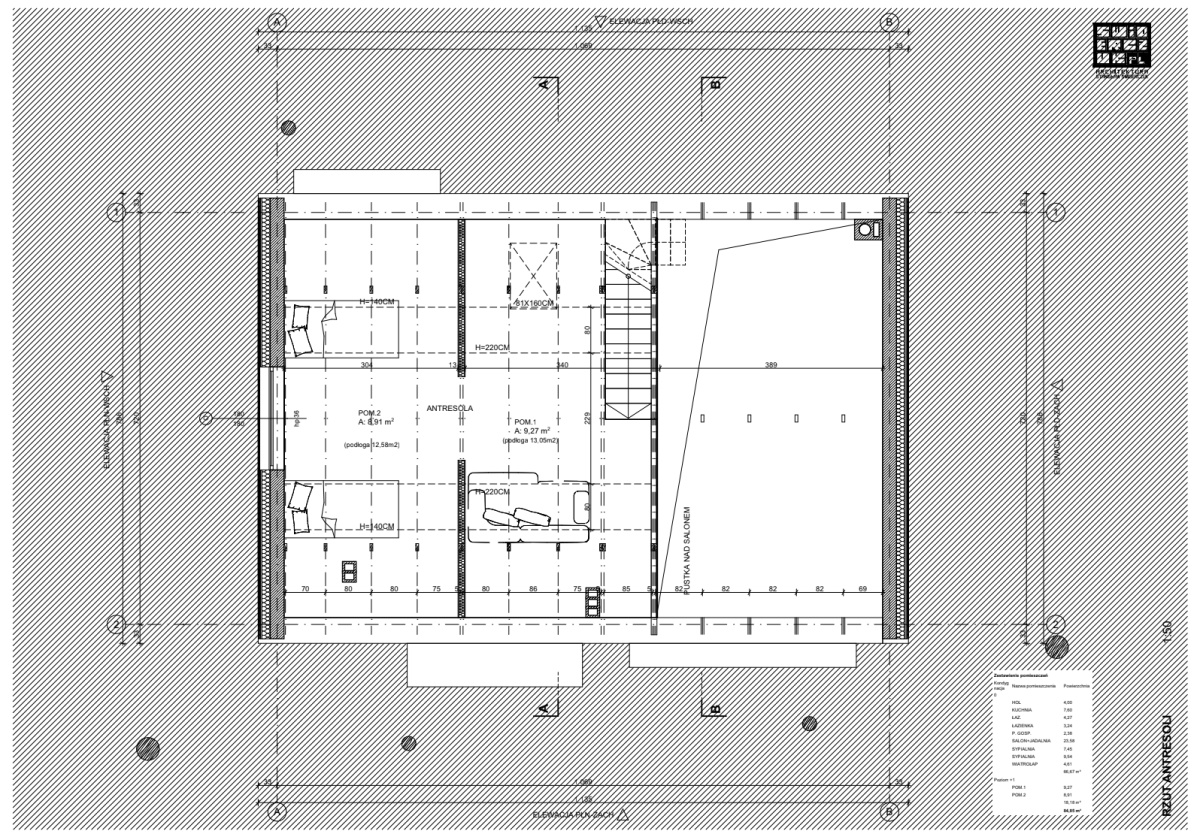
W lipcu 2025 roku wydano pozwolenie na budowę domu jednorodzinnego, którego koncepcja – widoczna na zdjęciu głównym – została indywidualnie zaprojektowana przez architekta specjalnie dla tej działki. Projekt zakłada minimalną ingerencję w naturę, a do rozpoczęcia budowy wystarczy wyciąć zaledwie 3 drzewa, pozostawiając niepowtarzalny klimat leśnego otoczenia.
Atuty działki:
– Działka otoczona lasem z każdej strony – cisza, prywatność i natura,
– Dojazd drogą gminną (utwardzoną i odśnieżaną),
– Prąd przy granicy działki,
– W okolicy stawy, lasy i tereny spacerowo-rowerowe,
– Niecałe 2 km do węzła S7 – nowej drogi ekspresowej Warszawa–Grójec (szybki dojazd do Warszawy),
– W pobliżu szkoła podstawowa,
To miejsce idealnie sprawdzi się jako:
– dom całoroczny w otoczeniu przyrody,
– weekendowy azyl poza miastem,
– lokalizacja pod działalność typu Slow (eko-turystyka, glamping itp.).
W ramach sprzedaży przekażemy:
– aktualne pozwolenie na budowę,
– koncepcję architektoniczną domu,
– opinie geotechniczną i geologiczną.
Lokalizacja: 51°55’46"N 20°49’24"E
Zainteresowanych zapraszamy do kontaktu – chętnie przekażemy szczegóły i odpowiemy na pytania.
Szukasz idealnego miejsca dla swojej rodziny? Oferujemy wykończony segment z ogródkiem, położony w zielonej okolicy.…
$1,200,000
Uzbrojona Działka w zagospodarowanej części Osowa ul. Hansa Christiana Andersena 53 oferuje dużą elastyczność, umożliwiając…
$939,000
What is there more kindly than the feeling between host and guest?
Aeschylus