10m2 | kawalerka | Konstancin-Jeziorna | Mirkowska
Na sprzedaż mikrokawalerka – Konstancin-Jeziorna, ul. Mirkowska 47 Na sprzedaż kompaktowa mikrokawalerka o powierzchni 10,3…
$264,900
pomorskie, Gdynia, Chwarzno-Wiczlino
sprzedaż
$749,000



















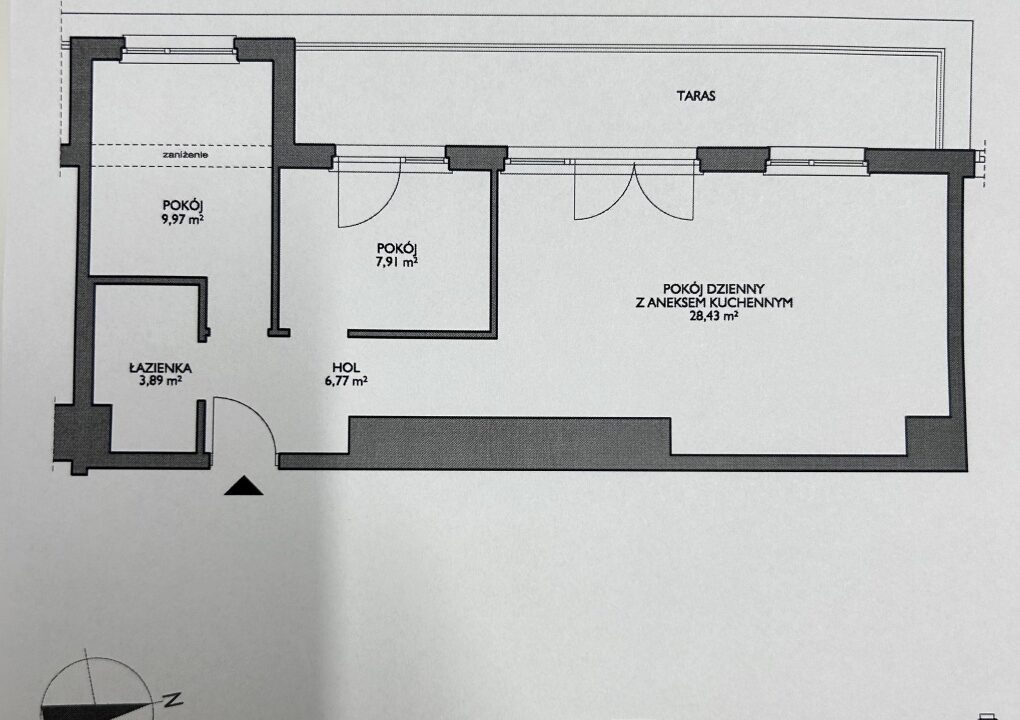
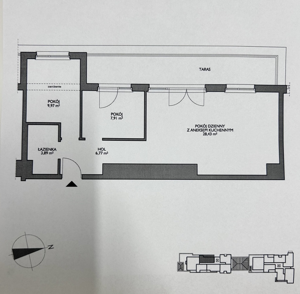
Na sprzedaż mieszkanie w Gdyni, usytuowane na trzecim piętrze w trzypiętrowym budynku. Nieruchomość o powierzchni 58,3 m² składa się z trzech pokoi, co czyni ją idealnym miejscem dla rodziny lub osób poszukujących przestrzeni do pracy i wypoczynku. Mieszkanie jest w stanie do remontu, co daje możliwość aranżacji wnętrza według własnych upodobań. Budynek został wybudowany w 2024 roku, co zapewnia nowoczesne rozwiązania budowlane oraz komfort użytkowania. Ogrzewanie w mieszkaniu jest centralne, co gwarantuje ciepło w zimowe dni. Nieruchomość będzie dostępna od lipca 2025 roku, co pozwala na zaplanowanie przeprowadzki. Gdynia to miasto z bogatą ofertą kulturalną i rekreacyjną, a lokalizacja mieszkania sprzyja codziennemu życiu.
Wyjątkowość mieszkania:
– bardzo dobrze nasłonecznione ( zachodnie )
– widok na las
– taras o powierzchni 14m2
– wyjście na taras z balkonu oraz z jednej sypialni
– bardzo funkcjonalny układ
– mieszkanie nowe
– ściany wycekolowane oraz pomalowane na biało
-kupujący zwolniony z podatku PCC
Mieszkanie składa się z:
– Salon z aneksem kuchennym
– dwa osobne pokoje
– korytarz
– łazienka
– taras
-komórka lokatorska – 10 000 zł ( zakup obligatoryjny )
– miejsce w hali garażowej – 45 000 zł ( zakup nie jest obligatoryjny)
Serdecznie zapraszam do kontaktu w celu uzyskania dodatkowych informacji oraz umówienia się na prezentację.
Nie interesują mnie oferty biura nieruchomości.
Na sprzedaż mikrokawalerka – Konstancin-Jeziorna, ul. Mirkowska 47 Na sprzedaż kompaktowa mikrokawalerka o powierzchni 10,3…
$264,900
Wyobraź sobie jasną, przestronną kawalerkę, w której każdy metr można zaplanować po swojemu. Duże okna…
$270,000
What is there more kindly than the feeling between host and guest?
Aeschylus