Mieszkanie 3 pokojowe na sprzedaż
Mieszkanie położone jest blisko centrum miasta oraz instytucji publicznych (urząd miasta, starostwo, dom kultury). Innym…
$370,000
pomorskie, Gdynia, Wiczlino
sprzedaż
$549,000















Na sprzedaż mieszkanie w Gdyni, usytuowane na parterze w trzypiętrowym budynku. Nieruchomość o powierzchni 40,96 m² składa się z dwóch pokoi, co czyni ją idealnym miejscem dla rodziny lub osób poszukujących przestrzeni do pracy i wypoczynku. Mieszkanie jest w stanie do remontu, co daje możliwość aranżacji wnętrza według własnych upodobań. Budynek został wybudowany w 2024 roku, co zapewnia nowoczesne rozwiązania budowlane oraz komfort użytkowania. Ogrzewanie w mieszkaniu jest centralne, co gwarantuje ciepło w zimowe dni. Nieruchomość będzie dostępna od lipca 2025 roku, co pozwala na zaplanowanie przeprowadzki. Gdynia to miasto z bogatą ofertą kulturalną i rekreacyjną, a lokalizacja mieszkania sprzyja codziennemu życiu.
W budynku znajduje się także rowerowania / wózkownia dostępna dla mieszkańców.
Wyjątkowość mieszkania:
gotowe do odbioru
– bardzo dobrze nasłonecznione ( zachodnie )
– widok na las
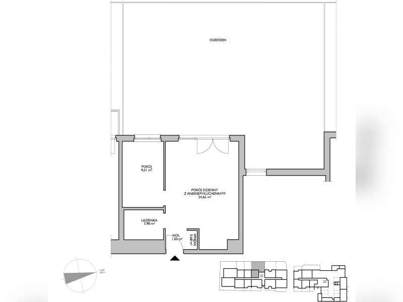
– ogródek o powierzchni 96 m2
– wyjście na taras z salonu
– komórką lokatorska ( dodatkowo płatne 15 tyś zł. zakup obligatoryjny)
– bardzo funkcjonalny układ
– mieszkanie nowe
-kupujący zwolniony z podatku PCC
– bez prowizji
Mieszkanie składa się z:
– Salon z aneksem kuchennym
– osobny pokój
– przedpokój
– łazienka
– ogród
Serdecznie zapraszam do kontaktu w celu uzyskania dodatkowych informacji oraz umówienia się na prezentację.
Nie interesują mnie oferty biura nieruchomości.
Mieszkanie położone jest blisko centrum miasta oraz instytucji publicznych (urząd miasta, starostwo, dom kultury). Innym…
$370,000
Sprzedam (bez pośredników – bez dodatkowych opłat i prowizji) przestronne mieszkanie o powierzchni 39,95 m²…
$519,000
What is there more kindly than the feeling between host and guest?
Aeschylus