2 pok, 35m2, Krzyki, Sky Tower, balkon, winda
Bezpośrednio na sprzedaż mieszkanie po generalnym remoncie o łącznej powierzchni 34,5 m². Lokal wykończony "pod…
$539,700
mazowieckie, Warszawa, Bielany
sprzedaż
$1,300,000










Unicorne Estate przedstawia:
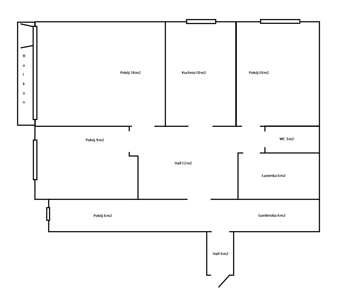
Przestronne mieszkanie 84 m² z pięknym widokiem – idealne dla rodziny lub pod inwestycję.
Na sprzedaż funkcjonalne mieszkanie o powierzchni 84 m² położone na 11 piętrze w budynku przy ul. Dantego na warszawskich Bielanach. Dużym atutem lokalu jest panoramiczny widok z okien oraz bardzo dobry dostęp do komunikacji miejskiej – w pobliżu znajduje się stacja metra Wawrzyszew.
Mieszkanie ma bardzo dobry i ustawny układ pomieszczeń, który daje wiele możliwości aranżacyjnych. Składa się z czterech niezależnych pokoi, oddzielnej kuchni, garderoby, przedpokoju, łazienki oraz osobnego WC. Taki rozkład świetnie sprawdzi się zarówno dla rodziny, jak i przy wynajmie.
Lokal jest odświeżony – ściany zostały odmalowane, w mieszkaniu zamontowane są okna PCV. Dzięki temu można w nim zamieszkać od razu lub przeprowadzić remont i aranżację według własnych potrzeb.
Budynek znajduje się w zielonej i dobrze skomunikowanej części Bielan. W pobliżu znajdują się sklepy, szkoły, tereny rekreacyjne oraz pełna infrastruktura miejska. Do stacji metra Wawrzyszew można dojść w kilka minut.
Najważniejsze atuty:
– powierzchnia 84 m²
– 4 pokoje + garderoba
– oddzielna kuchnia
– łazienka i osobne WC
– 11 piętro z pięknym widokiem
– okna PCV i odświeżone ściany
– świetna lokalizacja blisko metra
Mieszkanie z dużym potencjałem aranżacyjnym w atrakcyjnej lokalizacji.
Cena mieszkania: 1 300 000 zł
Zapraszam do kontaktu i na prezentację
Bezpośrednio na sprzedaż mieszkanie po generalnym remoncie o łącznej powierzchni 34,5 m². Lokal wykończony "pod…
$539,700
Do wynajmu doskonale położona nieruchomość w centrum Grodziska Mazowieckiego – najmocniej rozwijającej się w gminie…
$19,900
What is there more kindly than the feeling between host and guest?
Aeschylus