Mieszkanie 2 pokojowe z oddzielną kuchnią
Oferujemy na sprzedaż 2-pokojowe mieszkanie znajdujące się na trzecim piętrze przy ul. 11 Pułku Ułanów…
$257,000
mazowieckie, Warszawa, Ochota
sprzedaż
$880,000









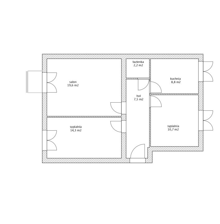
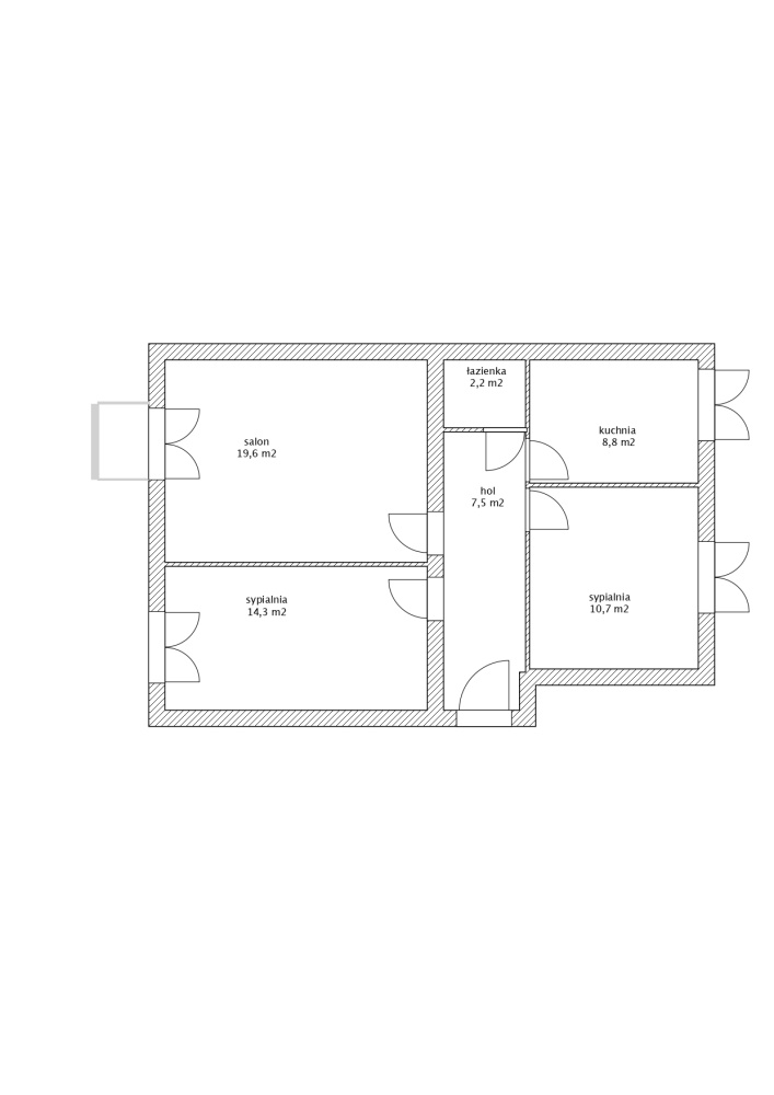
Na sprzedaż 3-pokojowe kamieniczne mieszkanie znajdujące się na Starej Ochocie przy ul. Kopińskiej 26.
BUDYNEK
Kamienica wybudowana w 1951 roku (z cegły!). Bardzo wysokie wnętrza (3,06 m), grube mury. Budynek docieplony, po wszystkich ważnych remontach. W budynku nie ma windy. Wszystkie media miejskie.
MIESZKANIE
Mieszkanie ma powierzchnie jest położone na 4, ostatnim piętrze. Nad mieszkaniem znajduje się docieplona strefa buforowa – nikt nie chodzi nad głową.
3 pokoje, oddzielna, duża kuchnia z oknem, łazienka i przedpokój z miejscem na duże szafy wnękowe oraz niewielki balkon.
Układ mieszkania daje ogromne możliwości aranżacyjne – można zmienić układ, również na mieszkanie czteropokojowe.
Piękne, drewniane podłogi z długiej, litej deski w całym mieszkaniu – można je odrestaurować.
Okna plastikowe, zmienione grzejniki oraz instalacje wodno kanalizacyjne oraz C.O.
Wysokie wnętrze daje poczucie, duże okna z ekspozycją południe-północ zapewniają dobre doświetlenie. Stan mieszkania – do remontu.
LOKALIZACJA
Stara Ochota, obok Hali Kopińskiej., blisko Parków (Park Szczęśliwiecki). Blisko Hala Banacha CH Blue City, Reduta, Park Szczęśliwiecki . Do Dworca Zachodniego 800 m. W pobliżu pełna infrastruktura, ścieżki rowerowe, punkty usługowe, szkoły, klimatyczne restauracje i kawiarnie. Blisko Uniwersytetu Medycznego, niektórych wydziałów UW i Politechniki.
Pełna własność, możliwość zakupu na kredyt.
Jesteśmy agencją nieruchomosci i za świadczone usługi pobieramy prowizję.
Treść niniejszego ogłoszenia nie stanowi oferty handlowej w rozumieniu Kodeksu Cywilnego.
Oferujemy na sprzedaż 2-pokojowe mieszkanie znajdujące się na trzecim piętrze przy ul. 11 Pułku Ułanów…
$257,000
Sprzedam bezpośrednio mieszkanie dwupokojowe o powierzchni 49,68 m, przy ul. Nowolipki 14, na granicy warszawskiej…
$819,000
What is there more kindly than the feeling between host and guest?
Aeschylus