2 pokoje, aneks kuchenny, taras, wyposażone
Mam przyjemność zaoferować Państwu zakup apartamentu 41m2 zlokalizowanego na pierwszym piętrze dwupiętrowego budynku przy ul.…
$499,000
małopolskie, Kraków, Podgórze
wynajem
$5,899










Wynajem bezpośrednio od właściciela, bez pośrednika, bez prowizji.
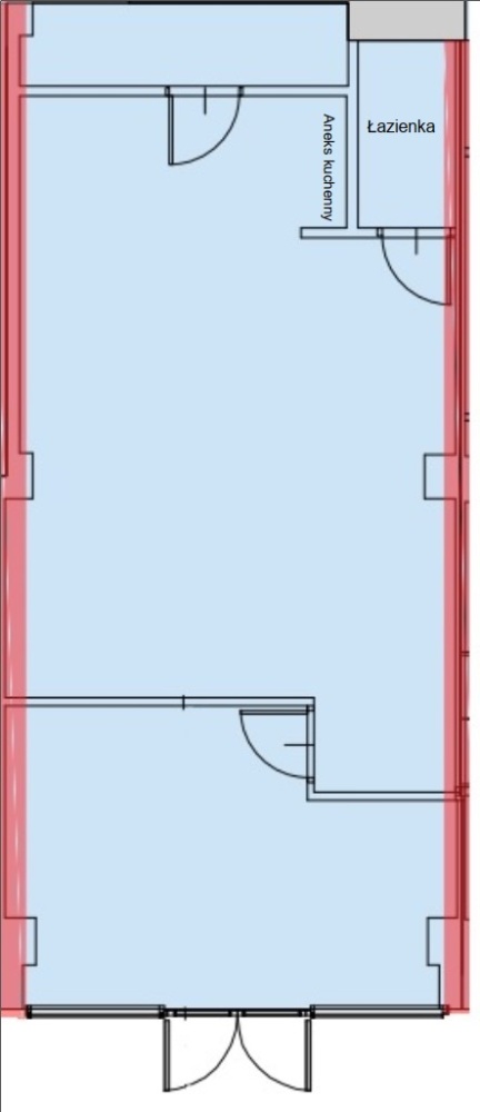
Do wynajęcia lokal biurowo-usługowy o powierzchni 75,37 m2, zlokalizowany na parterze biurowca na ul. Wadowickiej 6. Wejście do lokalu bezpośrednio z zewnątrz. Całość składa się z trzech pomieszczeń i toalety.
Udogodnienia:
– wygodny dojazd MPK
– możliwość wynajęcia miejsc parkingowych
– ochrona + monitoring nieruchomości
– sprzątanie części wspólnych
– odśnieżanie chodników i parkingów
– infrastruktura teleinformatyczna
– recepcja
– w budynku sklep spożywczy, drogeria, apteka, przychodnia Lux Med, sklep komputerowy, poczta, siłownia, przedszkole
Pow. 75,37 m2
Czynsz: 13,50 EUR/m2 + opłata eksploatacyjna: 20,50 PLN/m2
Długość umowy: minimum 1 rok, maksymalnie do końca 2027 roku.
Lokal dostępny od zaraz.
Mam przyjemność zaoferować Państwu zakup apartamentu 41m2 zlokalizowanego na pierwszym piętrze dwupiętrowego budynku przy ul.…
$499,000
Syndyk masy upadłości w ramach postępowania upadłościowego prowadzonego na podstawie postanowienia Sądu Rejonowego w Tarnowie,…
$370,000
What is there more kindly than the feeling between host and guest?
Aeschylus