Lokal biurowy na I piętrze
Wynajem bezpośrednio od właściciela, bez pośrednika, bez prowizji. Do wynajęcia lokal biurowy o powierzchni 84,46…
$5,434
małopolskie, Kraków, Podgórze
wynajem
$104,397


























Wynajem bezpośrednio od właściciela, bez pośrednika, bez prowizji.
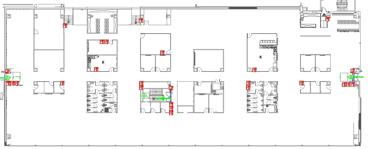
Do wynajęcia lokal biurowy o powierzchni 2.450,3 m2, zlokalizowany na I piętrze biurowca na ul. Wadowickiej 6. Lokal składa się z bardzo dużej powierzchni typu open space, dwóch kuchni, pięciu łazienek, jednego prysznica, dwóch szatni oraz 23 pomieszczeń o różnej wielkości.
Udogodnienia:
– wygodny dojazd MPK
– możliwość wynajęcia miejsc parkingowych
– ochrona + monitoring nieruchomości
– sprzątanie części wspólnych
– odśnieżanie chodników i parkingów
– infrastruktura teleinformatyczna
– recepcja
– w budynku sklep spożywczy, drogeria, apteka, sklep komputerowy, poczta, siłownia, przedszkole
Pow. 2.450,3 m2
Czynsz: 5 EUR/m2 + opłata eksploatacyjna: 21,50 PLN/m2
Długość umowy: minimum 1 rok, maksymalnie do końca 2028 roku.
Lokal dostępny od zaraz.
Wynajem bezpośrednio od właściciela, bez pośrednika, bez prowizji. Do wynajęcia lokal biurowy o powierzchni 84,46…
$5,434
Wynajem bezpośrednio od właściciela, bez pośrednika, bez prowizji. Do wynajęcia lokal usługowy o powierzchni 85,49…
$6,890
What is there more kindly than the feeling between host and guest?
Aeschylus