Nowoczesne 2-pokojowe mieszkanie z balkonem M 1.1
Cena w ogłoszeniu dotyczy mieszkania dwupokojowego na pierwszym piętrze budynku: M 1.1 – 47,35 m²…
$495,517
śląskie, Katowice,
wynajem
$3,900




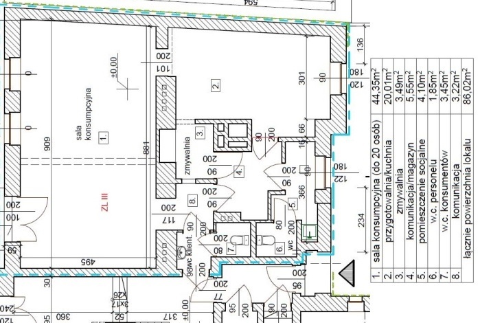
Do wynajęcia lokal użytkowy mający status handlowo-usługowy w śródmieściu Katowic. Pow. 86m2 z wejściem od ruchliwej ulicy. W pobliżu Urząd Wojewódzki, Uniwersytet Śląski. Ogrzewanie podłogowe, klimatyzacja.
Cena w ogłoszeniu dotyczy mieszkania dwupokojowego na pierwszym piętrze budynku: M 1.1 – 47,35 m²…
$495,517
Studio Botanic przy Placu Weyssenhoffa 9 oferuje stanowisko fryzjerskie na wynajem lub manicure. zobacz nas…
$1,500
What is there more kindly than the feeling between host and guest?
Aeschylus