Willa w Stylu Dworkowym
Sprzedam wyjątkowy dom jednorodzinny 320 m² – Warmińsko-Mazurskie, Czerniki – blisko jezior, lasów i natury…
$2,590,000
mazowieckie, Prażmów, Ustanów
sprzedaż
$995,996







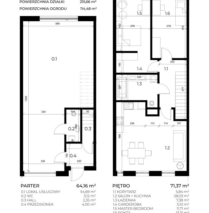
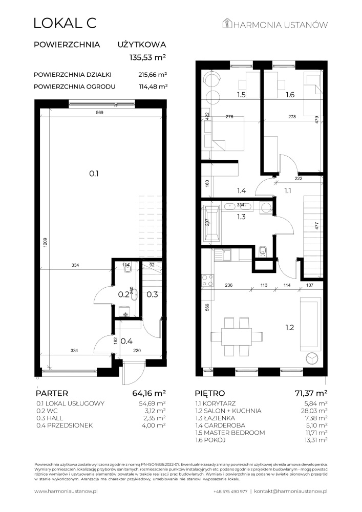
Oferujemy sprzedaż lokalu mieszkalnego, z częścią usługową w parterze, z ogrodem, niezależnym wjazdem i wejściem. Na piętrze salon połączony z aneksem kuchennym, 2 sypialnie, łazienka oraz garderoba. Poddasze nieużytkowe do własnego zagospodarowania.
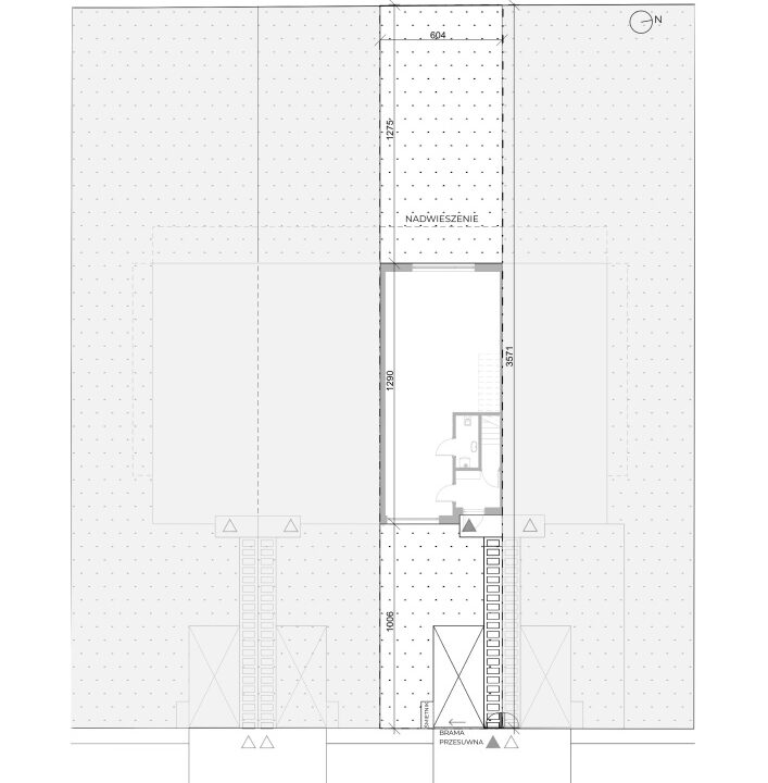
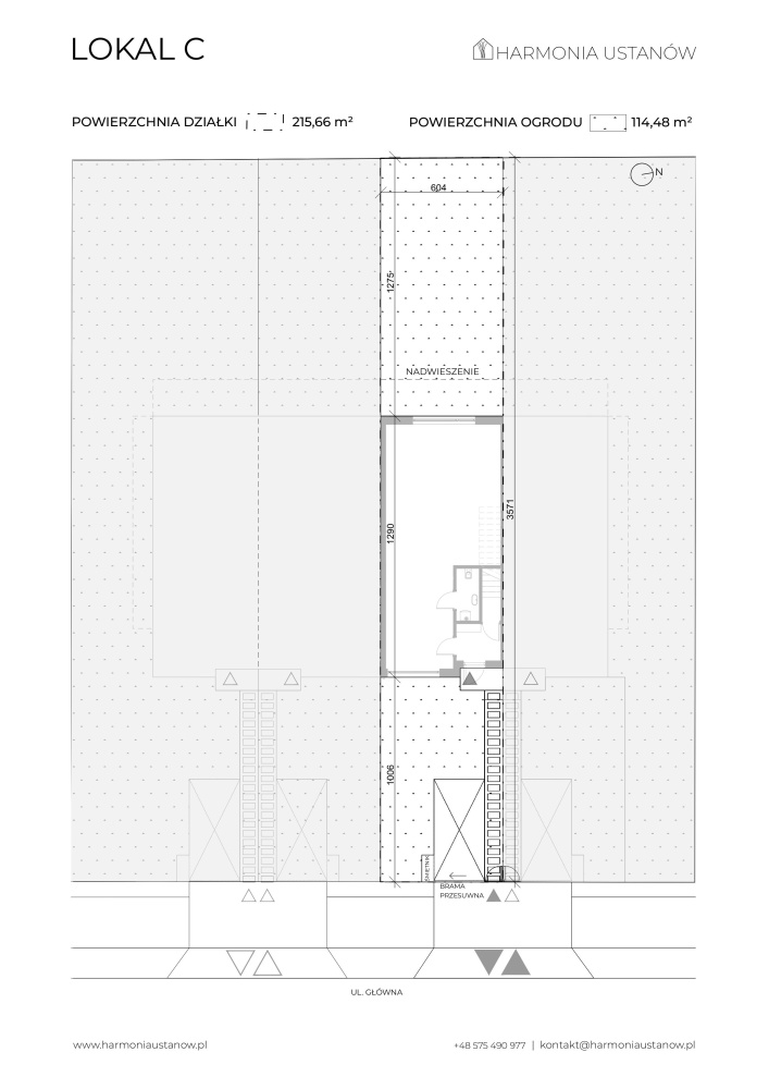
Powierzchnia użytkowa – 135,53 m²
Powierzchnia działki- 215 m²
PARTER 64,16 m²
– LOKAL USŁUGOWY 54,69 m²
– WC 3,12 m²
– HALL 2,35 m²
– PRZEDSIONEK 4,00 m²
PIĘTRO 71,37 m²
– KORYTARZ 5,84 m²
– SALON + KUCHNIA 28,03 m²
– ŁAZIENKA 7,38 m²
– GARDEROBA 5,10 m²
– MASTER BEDROOM 11,71 m²
– POKÓJ 13,31 m²
UDOGODNIENIA:
• Master Bedroom z garderobą i łazienką
• Przesuwne okna tarasowe
• Przestronna łazienka
• Własny ogród
• Wysokie pomieszczenia (2,8 m w parterze i 2,7 m na piętrze) oraz okna (2,5 m)
• Pokoje bez skosów
• Poddasze (ok.56 m2 nie wliczone w metraż)
Zlokalizowane w otulinie Lasów Chojnowskich, w pobliżu pełna infrastruktura, sklepy, szkoły, przedszkola, apteki, przychodnia, przystanek bus i pkp (2 strefa ZTM Warszawa), atrakcje sportowe, turystyczne i rozrywkowe.
• Dino 190m;
• Żabka 500m;
• Piekarnia 125m;
• Szkoła podstawowa 470m;
• Przedszkole 500m;
• Apteka i przychodnia 250m;
• Las Chojnowski 600m;
Zadbaliśmy o estetyczny, nowoczesny wygląd budynku stawiając na trwałe i naturalne materiały. Ściany z pełnej cegły silikatowej, doskonałe akustycznie i konstrukcyjnie, produkowanej bez wypalania (nie promieniuje), z naturalnych surowców (wapń, piasek, woda).
Zastosowaliśmy czystą formę jasnych elewacji przełamanych ciepłym odcieniem drewna. Połączenie funkcjonalności i estetyki było naszym priorytetem.
ASPEKTY TECHNICZNE:
Oferujemy lokale w standardzie deweloperskim, ale możliwe jest również wykończenie ‘pod klucz’.
Budujemy z solidnych, sprawdzonych materiałów, w trwałej tradycyjnej technologii murowanej i żelbetowej. Dach skośny w konstrukcji drewnianej, na fragmentach stropodach żelbetowy z zielenią.
Budynek przygotowany jest do zastosowania powszechnie stosowanych źródeł ciepła, czyli gazu, pompy ciepła, rekuperacji czy fotowoltaiki z magazynem energii oraz ładowarki EV.
Każdy lokal posiada niezależny wjazd z furtką, miejsce parkingowe oraz ogrodzony ogród.
O NAS
Jesteśmy firmą z wieloletnim doświadczeniem zdobytym przy projektach deweloperskich na terenie Warszawy i w okolicach.
Łączymy doświadczenie architektoniczne i wiedzę budowlaną z pasją do tworzenia estetycznych rozwiązań. W naszym zespole pracują osoby charakteryzujące się dużym dorobkiem projektowym, wykonawczym i inwestycyjnym. Doświadczenie zdobyliśmy współpracując z partnerami inwestycyjnymi, deweloperami, podwykonawcami, biurami projektów jak i doradcami technicznymi przy przygotowaniu oraz realizacji inwestycji mieszkaniowych.
Zapraszamy do zapoznania się z inwestycją na naszej stronie harmoniaustanow.pl oraz do kontaktu telefonicznego.
+48 575 490 977
w w w . h ar m o n i a u s t a n o w .p l
Sprzedam wyjątkowy dom jednorodzinny 320 m² – Warmińsko-Mazurskie, Czerniki – blisko jezior, lasów i natury…
$2,590,000
OFERTA AGENCYJNA – POSREDNIKOM DZIEKUJEMY. Dwupokojowe mieszkanie w czteropiętrowym budynku, tuż obok Akademii Teatralnej, na…
$897,000
What is there more kindly than the feeling between host and guest?
Aeschylus