Mieszkanie z dużym ogrodem Chwarzno – Wiczlino
Na wynajem przestronne 3-pokojowe mieszkanie z dużym ogrodem i miejscem postojowym w hali garażowej. Na…
$4,500
małopolskie, Niepołomice,
sprzedaż
$579,000
















Lokalizacja: Podłęże – Trawniki, spokojna i zielona okolica
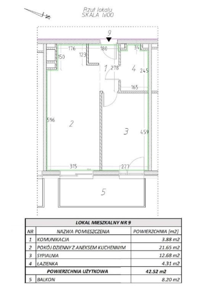
Powierzchnia mieszkania: 42,52 m²
Rok budowy: 2025
Piętro: 1 (w nowoczesnym budynku z windą)
Miejsce postojowe w garażu podziemnym 30 000zł + komórka lokatorska gratis
Układ mieszkania:
Sypialnia – 12,68 m²
Pokój dzienny z aneksem kuchennym – 21,65 m²
Przedpokój – 3,88 m²
Łazienka – 4,31 m²
Balkon – 8,20 m² (z wyjściem z obu pokoi)
Opis:
Na sprzedaż nowoczesne, jasne mieszkanie zlokalizowane na pierwszym piętrze nowego budynku z 2025 roku w cichej i spokojnej części Podłęża (obok Niepołomic) . Mieszkanie wykończone z dbałością o każdy detal – gotowe do zamieszkania bez dodatkowych nakładów finansowych.
Meble kuchenne wykonane na wymiar
Pełne wyposażenie AGD (w zabudowie)
Łazienka z prysznicem
Przestronny przedpokój z szafą w zabudowie
Duży balkon z wyjściem zarówno z salonu, jak i sypialni
Klimatyzacja
Miejsce postojowe w garażu podziemnym 30 000zł + komórka lokatorska gratis
Komunikacja i lokalizacja:
Przystanek MPK – 7 minut pieszo
Dojazd do Niepołomic – ok. 13 minut MPK
Dojazd do Krakowa:
20 minut pociągiem do Rynku Głównego
ok. 40 min komunikacją miejską do Rynku Głównego
Galeria Stawowa – 12 minut pieszo
W okolicy liczne tereny zielone, sklepy, szkoły oraz przyjazne sąsiedztwo. Mieszkanie idealne dla pary, singla lub jako inwestycja pod wynajem.
Cena: 609 000 zł mieszkanie wraz z miejscem w garażu podziemnym i komórką lokatorską
Zainteresowanych zapraszam do kontaktu w wiadomości prywatnej lub telefonicznie pod numerem tel 666-017-107
Bez podatku PCC i Bez prowizji
Możliwość obejrzenia mieszkania po wcześniejszym umówieniu terminu.
Ogłoszenie bezpośrednio od właściciela – nie współpracuje z pośrednikami.
Powyższe ogłoszenie nie stanowi oferty handlowej w rozumieniu przepisów art. 66 par. 1 Kodeksu Cywilnego, a dane w nim zawarte mają jedynie charakter informacyjny i mogą ulec zmianie.
Na wynajem przestronne 3-pokojowe mieszkanie z dużym ogrodem i miejscem postojowym w hali garażowej. Na…
$4,500
Na sprzedaż 3-pokojowy mieszkanie w budynku o podwyższonym standardzie. Lokal o powierzchni 55,7 m², w…
$1,179,000
What is there more kindly than the feeling between host and guest?
Aeschylus