BEZPOŚREDNIO | 0% PROWIZJI | POMPA CIEPŁA W CENIE
BEZPOŚREDNIO | 0% PROWIZJI | POMPA CIEPŁA W STANDARDZIE Na sprzedaż nowoczesny dom w zabudowie…
$540,000
małopolskie, Kraków, Podgórze
sprzedaż
$659,000



















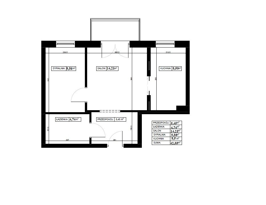
Biuro nieruchomości AreaHouse Studio Wola Duchacka s.c. proponuje na sprzedaż mieszkanie 2 – pokojowe przy ul. Pszennej.
Lokal znajduje się na drugim piętrze w budynku 4-piętrowym z windą.
Nieruchomość składa się z sypialni, salonu, oddzielnej, jasnej kuchni, łazienki oraz przedpokoju.
Z salonu jest wyjście na balkon skierowany na stronę południowo- zachodnią. Mieszkanie jest bardzo jasne i przestronne.
Łączna powierzchnia mieszkania wynosi 42,55 m2.
Czynsz 560 zł.
Miejsca postojowe pod blokiem.
Mieszkanie znajduję się blisko CH Bonarka-10 minut pieszo, a samochodem 3 minuty. Do najbliższego przystanku autobusowego 3 minuty.
Proponowane mieszkanie znajduje się w południowej części Krakowa – Wola Duchacka Zachód – Dzielnica XI Podgórze Duchackie. Jest to spokojna okolica, która charakteryzuje się dużą ilości terenów zielonych i dobrą komunikacją z centrum miasta. W pobliżu lokalu jest bardzo dobrze rozwinięta infrastruktura, znajdują się tutaj liczne sklepy osiedlowe, apteka, stomatolog, przychodnia, kościół, szkoła, przedszkola, żłobki oraz place zabaw dla dzieci.
Kontakt:
Biuro nieruchomości AreaHouse
ul. Klonowica 24/LU2, 30-654 Kraków
OFERTA NA WYŁĄCZNOŚĆ
BEZPOŚREDNIO | 0% PROWIZJI | POMPA CIEPŁA W STANDARDZIE Na sprzedaż nowoczesny dom w zabudowie…
$540,000
Spółka LOCUS HOME to deweloper który realizuje inwestycje mieszkaniowe na terenie Katowic od wielu lat.…
$579,568
What is there more kindly than the feeling between host and guest?
Aeschylus