Apartament górski z sauną 3 pokojowy z parkingiem
Sprzedam w pełni wyposażone mieszkanie własnościowe / górski apartament z sauną. Mieszkanie zlokalizowane jest centrum…
$575,000
śląskie, Ruda Śląska,
sprzedaż
$360,000











Kontakt tylko przez WhatsApp!!!
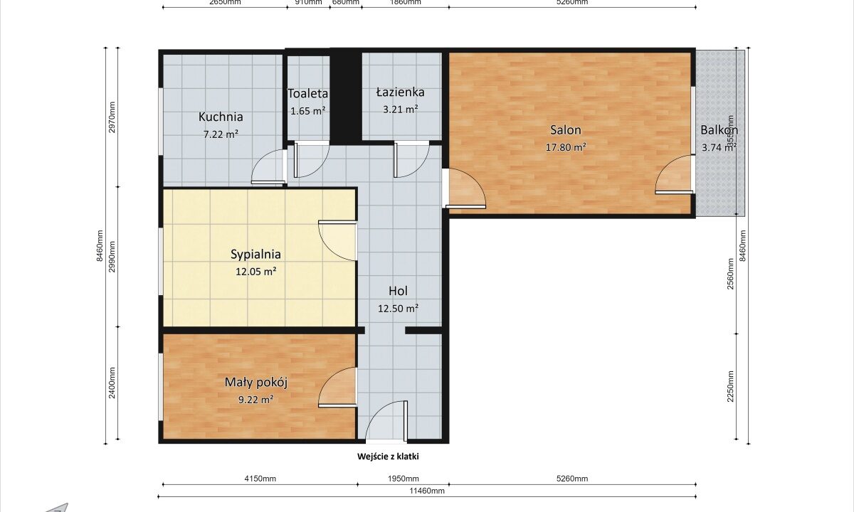
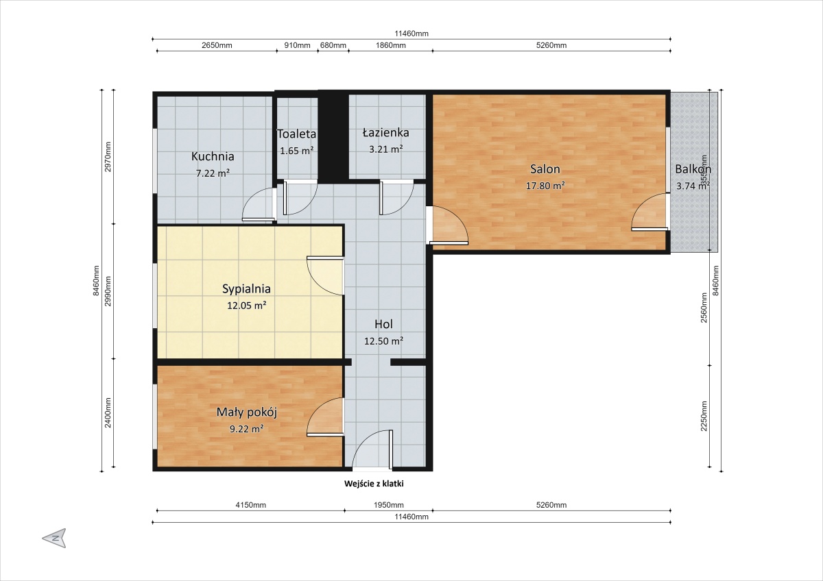
Na sprzedaż przestronne, 3-pokojowe mieszkanie o powierzchni 64 m², znajdujące się na ostatnim piętrze w Rudzie Śląskiej, przy ulicy Fiołków. Mieszkanie wymaga kapitalnego remontu.
Dużym atutem jest balkon z widokiem na zieloną okolicę – zapewnia to prywatność i idealne miejsce na relaks na świeżym powietrzu. Do mieszkania przynależy również piwnica, która daje dodatkową przestrzeń do przechowywania.
Ogrzewanie mieszkania i ciepłej wody pochodzi z miejskiej sieci ciepłowniczej.
Oferta prywatna – zapraszam do kontaktu i obejrzenia mieszkania osobiście.
Sprzedam w pełni wyposażone mieszkanie własnościowe / górski apartament z sauną. Mieszkanie zlokalizowane jest centrum…
$575,000
Mam do zaoferowania mieszkanie inwestycyjne w samym centrum miasta. Zamiast jednego mieszkania, stworzyliśmy tutaj 3…
$550,000
What is there more kindly than the feeling between host and guest?
Aeschylus