Wynajmę mieszkanie 3 pokoje, Kolejowa 20
Wynajmę mieszkanie 3 pokojowe (78,11 m²), z umeblowaną kuchnią i łazienką na 3 piętrze. Na…
$1,300
kujawsko-pomorskie, Włocławek, Zazamcze
sprzedaż
$235,000











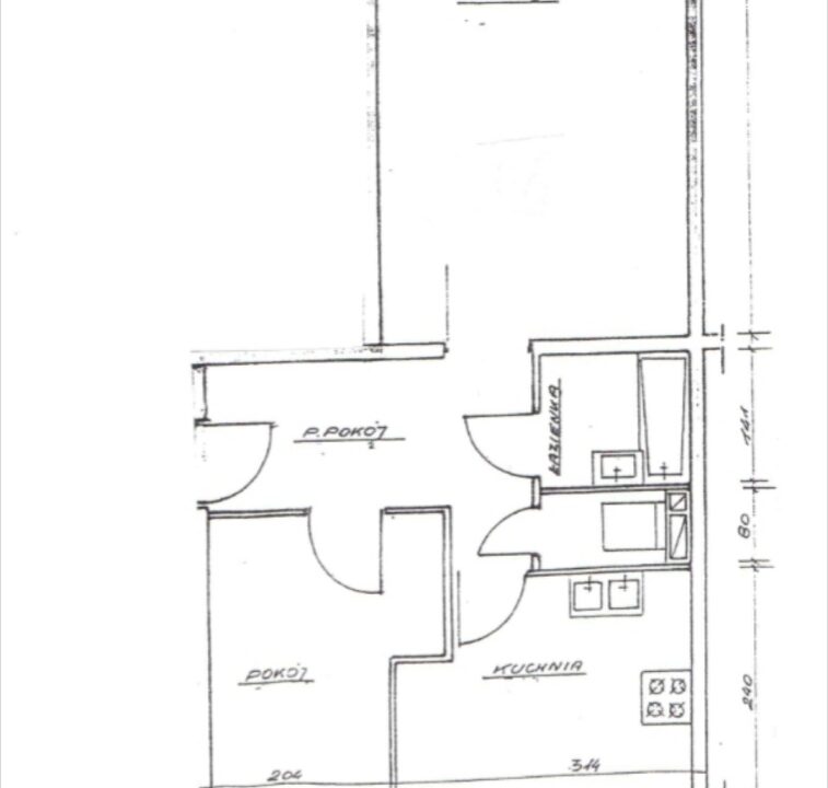
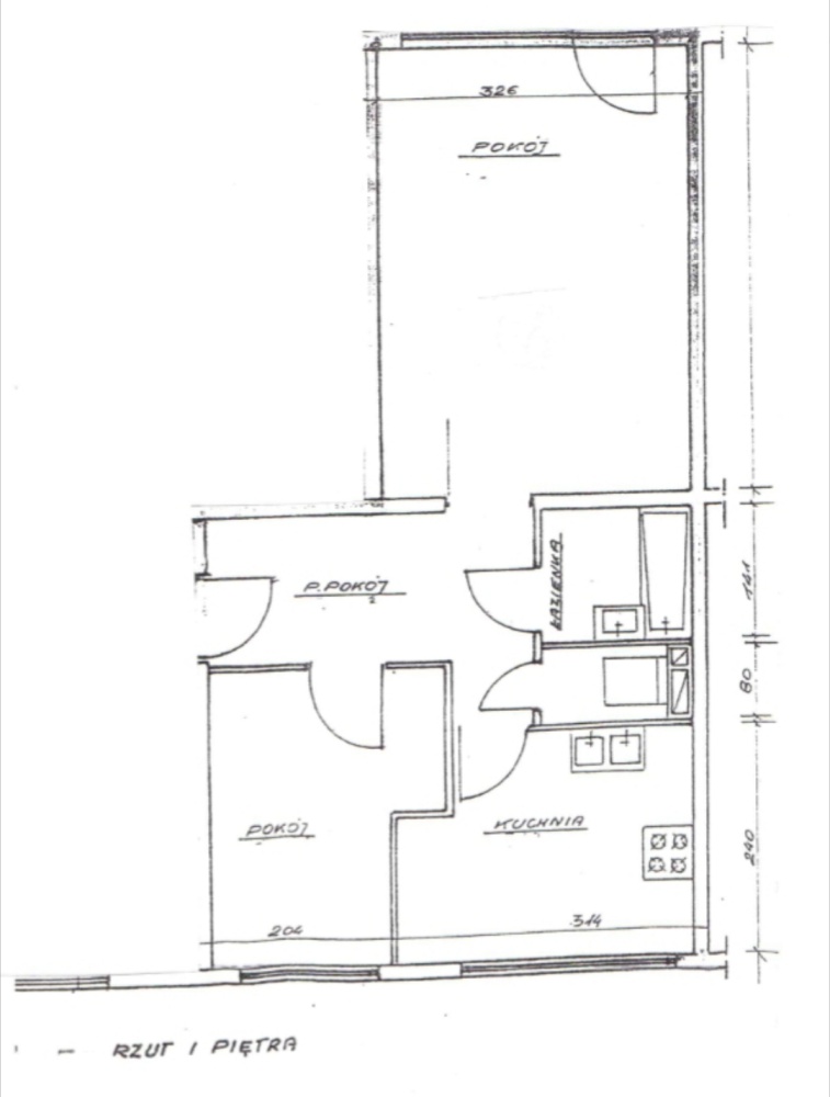
Oferuję na sprzedaż komfortowe dwupokojowe mieszkanie na osiedlu Zazamcze przy ulicy Hożej.
Mieszkanie o powierzchni 39 m2, usytuowane na pierwszym piętrze czteropiętrowego bloku .
Mieszkanie składa się dwóch niezalenych pokoi w tym jeden z balkonem, jasnej kuchni z oknem
przedpokoju oraz oddzielnych łazienki i wc.
Niewątpliwymi atutami oferowanego mieszkania są świetny rozkład pomieszczeń wszystkie są niezależne i dobrze ustawne .
Stosunkowo niskie opłaty administracyjne z wliczonymi zaliczkami na ogrzewanie ora bieżąca wodę, wywóz nieczystości oraz inne opłaty związane zużytkowaniem nieruchomości.
Świetna lokalizacja w bezpośrednim sąsiedztwie lasu, terenów rekreacyjnych oraz niezbędnej infrastruktury jak sklepy, szkoła , przedszkole oraz dworzec.
Mieszkanie do wydania od zaraz .
Wynajmę mieszkanie 3 pokojowe (78,11 m²), z umeblowaną kuchnią i łazienką na 3 piętrze. Na…
$1,300
Dzień dobry, Przedstawiam Państwu ofertę bezpośrednią na sprzedaż dwóch mieszkań na jednej KW. Mieszkania po…
$575,000
What is there more kindly than the feeling between host and guest?
Aeschylus