Nowoczesne 2-pokojowe mieszkanie z balkonem
Cena w ogłoszeniu dotyczy mieszkania dwupokojowego na drugim piętrze budynku: M 2.1 – 47,35 m²…
$496,228
pomorskie, Gdynia,
sprzedaż
$1,290,000

















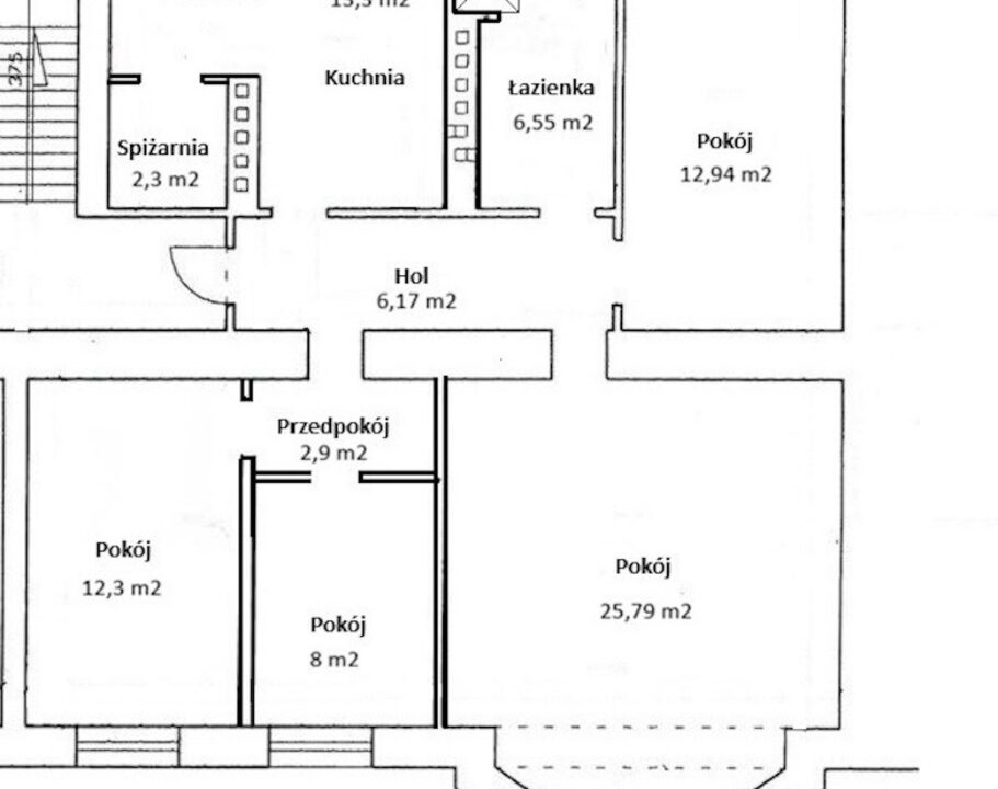
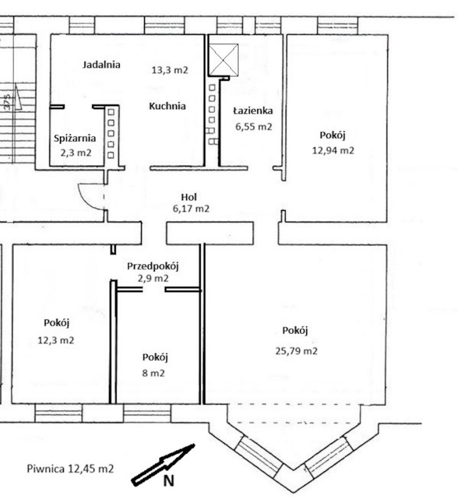
Marzysz o mieszkaniu, które łączy historyczny urok z nowoczesnym komfortem? Ta przedwojenna kamienica w centrum Gdyni oferuje przestronne, jasne pokoje i słoneczny wykusz w salonie. Stylowo i klimatycznie urządzone wnętrza sprawiają, że miejsce to idealnie sprawdzi się zarówno dla rodziny , ceniącej miejską wygodę i bliskość morza, jak i dla firmy. Rozpoznawalne miejsce może być topową lokalizacją dla kancelarii prawniczej, gabinetu, salonu odnowy.
Najważniejsze atuty mieszkania:
Jasne, słoneczne pokoje z wsch.-południową ekspozycją
Wysokie sufity 2,90 m
Wykusz zapewniający dużo naturalnego światla
Osobna kuchnia ze spiżarnią
Kominek na biopaliwo
Wymienione wszystkie instalacje
Zamknięte podwórko z możliwością parkowania
Bardzo duża, prywatna piwnica 12,45 m² z własnym zasilaniem 220V – idealna np. na warsztat.
Nieograniczony dostęp do wspólnego strychu
Monitoring i światłowód
Lokalizacja– wszędzie blisko, w zasięgu wzroku, na pieszo:
3 minuty do komunikacji-SKM, PKM, ZKM,
Sklepy, restauracje
10 minut: szkoły, przychodnie, kościół, szpital
15 minut: Bulwar, plaża, Las , Skwer Kościuszki, Teatr Muzyczny, Gdyńskie Centrum Filmowe
Dodatkowo:
Ścieżki rowerowe prowadzą przez całe miasto i okolice, w 1h do Rewy!
Centrum handlowe, hale sportowe, stadiony i molo w Orłowie w zasięgu kilku min samochodem.
Lokal jak na lokalizacje w ścisłym centrum miasta, jest cichy a bliskość ulicy i dworca to wyłącznie atut tej nieruchomości.
Idealne dla osób ceniących wyjątkowość, wygodę mieszkania w centrum miasta, komfort przestronnego apartamentu, bliskość morza i plaży.
Zapraszam do umawiania się na prezentację tego wyjątkowego mieszkania.
Kupujący nie płaci prowizji.
Agenci proszeni są nie dzwonić, w sprzedaż jest już zaangażowany pośrednik.
Cena w ogłoszeniu dotyczy mieszkania dwupokojowego na drugim piętrze budynku: M 2.1 – 47,35 m²…
$496,228
Spółka LOCUS HOME to DEWELOPER który realizuje inwestycje mieszkaniowe na terenie Katowic od wielu lat.…
$756,800
What is there more kindly than the feeling between host and guest?
Aeschylus