Wynajem Lokalu Użytkowego przy al. Kromera 52 m2
Witam! Oferuję na wynajem lokal biurowy o łącznej powierzchni użytkowej 51,92 m2, znajdujący się na…
$3,200
mazowieckie, Warszawa, Ochota
sprzedaż
$880,000









Na sprzedaż 3-pokojowe kamieniczne mieszkanie znajdujące się na Starej Ochocie przy ul. Kopińskiej 26.
ATUTY:
-wysokie wnętrze, ostatnie piętro
-bardzo plastyczne wnętrze – jest tylko 1 ściana konstrukcyjna
– zielony widok w koronach drzew
-bardzo pożądana lokalizacja na Starej Ochocie
-zadbany budynek po wszystkich remontach
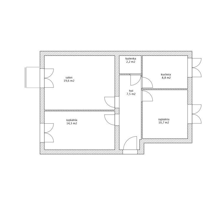
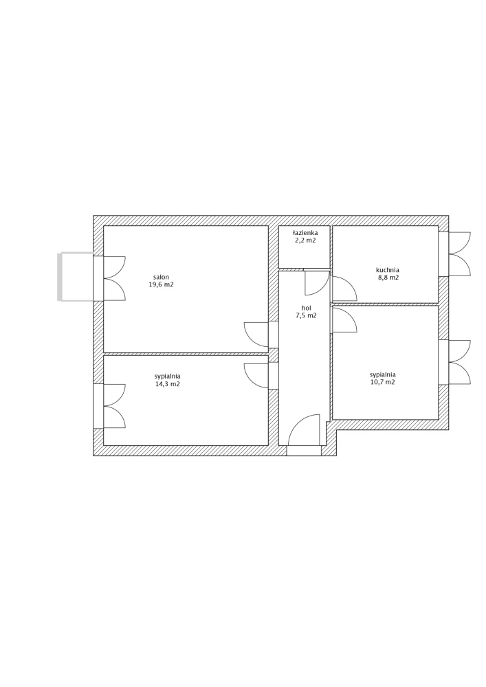
MIESZKANIE
Mieszkanie ma powierzchnie jest położone na 4, ostatnim piętrze. Nad mieszkaniem znajduje się docieplona strefa buforowa – nikt nie chodzi nad głową.
3 pokoje, oddzielna, duża kuchnia z oknem, łazienka i przedpokój z miejscem na duże szafy wnękowe oraz niewielki balkon.
Układ mieszkania daje ogromne możliwości aranżacyjne – można zmienić układ, również na mieszkanie czteropokojowe.
Piękne, drewniane podłogi z długiej, litej deski w całym mieszkaniu – można je odrestaurować.
Okna plastikowe, zmienione grzejniki oraz instalacje wodno kanalizacyjne oraz C.O.
Wysokie wnętrze daje poczucie przestronności, duże okna z ekspozycją wschód-zachód zapewniają dobre doświetlenie. Stan mieszkania – do remontu.
Pełna własność, możliwość zakupu na kredyt.
BUDYNEK
Kamienica wybudowana w 1951 roku (z cegły!). Bardzo wysokie wnętrza (3,06 m), grube mury. Budynek po wszystkich ważnych remontach. W budynku nie ma windy. Wszystkie media miejskie.
LOKALIZACJA
Stara Ochota, obok Hali Kopińskiej., blisko Parków (Park Szczęśliwiecki). Blisko Hala Banacha CH Blue City, Reduta, Park Szczęśliwiecki . Do Dworca Zachodniego 800 m. W pobliżu pełna infrastruktura, ścieżki rowerowe, punkty usługowe, szkoły, klimatyczne restauracje i kawiarnie. Blisko Uniwersytetu Medycznego, niektórych wydziałów UW i Politechniki.
Jesteśmy agencją nieruchomosci i za świadczone usługi pobieramy prowizję.
Treść niniejszego ogłoszenia nie stanowi oferty handlowej w rozumieniu Kodeksu Cywilnego.
Witam! Oferuję na wynajem lokal biurowy o łącznej powierzchni użytkowej 51,92 m2, znajdujący się na…
$3,200
UWAGA: SPRZEDAŻ BEZPOŚEDNIA! Dom nie podlega wysiedleniom w ramach inwestycji Centralnego Portu Komunikacyjnego (CPK). Do…
$1,380,000
What is there more kindly than the feeling between host and guest?
Aeschylus